Premium New development
Back to results

2 Bed Apartment for sale

Torrevieja, Alicante, Valencia, Spain

£225,472 *  [€259,000]

2 Bed Apartment for sale

Torrevieja, Alicante, Valencia, Spain

£225,472 *  [€259,000]

Property Details


  • Bedrooms: 2
  • Bathrooms: 2
  • Habitable space: 81 m2

Features


  • Private Terrace
  • En-Suite Bathroom
  • Close to Amenities
  • Close to Golf
  • Close to Shops
  • Parking
  • Open Plan Design
  • Close to Sandy Beaches
  • Contemporary Finish
  • Near Beach
  • Near Transport
Read more

Full Description


EXCLUSIVE PACKAGE INCLUDED WITH ALL OUR PROPERTIES.

2 Bed 2 Bath Apartment in Torrevieja.

PROPERTY OVERVIEW:

Save €5,000 with this property.

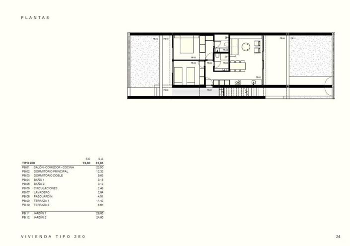
This contemporary residential complex comprises 52 modern apartments set on a total surface of 6,700 m², designed to offer comfortable living in a stylish and practical environment. Each home includes a private underground parking space and a storage room, providing convenience and added value for everyday life. The apartments feature two or three bedrooms and two bathrooms, one of which is en suite, and buyers can choose between ground floor properties with private gardens or upper floor homes with generous terraces and private solariums. Every layout has been carefully planned to maximize natural light and create seamless indoor and outdoor living spaces, perfect for enjoying the Mediterranean climate throughout the year.

The development is arranged across four blocks that surround a spacious central communal area, creating a welcoming and secure atmosphere for residents. At the heart of the complex is a swimming pool with a separate children’s area, complemented by beautifully landscaped gardens that invite relaxation, social gatherings, and quality family time in a peaceful setting.

Each apartment is constructed to modern quality standards and includes pre-installation for ducted air conditioning, an aerothermal system for hot water to enhance energy efficiency, exterior lighting, and double-glazed exterior carpentry. The kitchens come fully fitted, combining functionality with contemporary style. These thoughtful features ensure a high level of comfort, ease of maintenance, and reduced energy consumption, making the homes both practical and sustainable for long-term living.

PROPERTY LOCATION:

This modern new-build residential complex is located in Los Balcones, one of the most established and sought-after neighborhoods on the outskirts of Torrevieja. Set within a peaceful residential environment, the development enjoys excellent access to everyday amenities while being just 4 kilometers from the sandy beaches of the Costa Blanca. Los Balcones is appreciated for its relaxed lifestyle, wide avenues, green spaces, and close proximity to hospitals, supermarkets, restaurants, and shopping centers, making it an ideal location for both year-round living and holiday use.

The area also benefits from a strategic position near many popular attractions and services. The beaches of Torrevieja are only a short drive away, while several well-known golf courses, including Villamartín, Las Ramblas, and Campoamor, can be reached within 10 to 15 kilometers. The University Hospital of Torrevieja is less than 2 kilometers away, providing added convenience and peace of mind. Torrevieja’s town center, located about 5 kilometers from the development, is easily accessible by bus and offers a vibrant mix of shops, restaurants, cultural venues, and a lively marina. Alicante International Airport is approximately 42 kilometers away, ensuring easy national and international connections, and the port of Torrevieja is around 6 kilometers from the complex.

With its contemporary design, attractive communal spaces, and prime location close to beaches, golf courses, and essential services, this residential development in Los Balcones is an excellent choice as a permanent home, a holiday retreat, or a solid investment opportunity. Contact us today to learn more or to arrange a viewing of these new-build apartments in Los Balcones, Torrevieja. Why Choose Movehappy?
We would like to welcome you to Movehappy. We are proud to offer a new innovative and refreshing way to purchase your new dream home in Spain.
All of our new build properties are offered with our unique Movehappy package. This gives you a total saving of up to €18,000. The package consists of Spanish legal services and a furniture voucher.
We have a dedicated, multilingual team to help you and we can organise your property search from start to finish making your purchasing journey enjoyable and stress free.
We are API certified (API Member Number 593) and therefore licensed to practice all real estate services, giving you the greatest peace of mind. Purchasing your property from an API certified agent like Movehappy means you can guarantee you will be greeted with valuable knowledge, honesty and integrity.
Not only that, but there’s also the following:

Established since 2003
Fully registered Spanish Limited Company
Members of AIPP (Association of Property Professionals)
Public liability insurance
Comprehensive after sales service

Start your Spanish property journey with Movehappy today and together we will find the right property for you.
Read more

Map may not show exact location

This property listing (ref: MOHN9509) is an advertisement supplied by Movehappy SL and does not constitute property particulars. While aplaceinthesun.com (APITS Ltd.) requests all advertisers supply correct details, it does not carry out checks on the information supplied and cannot be held responsible for any inaccuracies. Aplaceinthesun.com recommends seeking independent legal advice prior to any overseas property purchase.
*Based on an exchange rate of 0.8705 from Euro to GBP. This rate is updated daily and is an indicative market rate supplied by A Place in the Sun Currency. Actual trading rates vary.