Premium New development
Back to results

Plot for sale

Polemi, Paphos, Cyprus

£299,730 *  [€344,300]

Plot for sale

Polemi, Paphos, Cyprus

£299,730 *  [€344,300]

Property Details


  • Bedrooms: 0
  • Bathrooms: 0
  • Plot size: 3130 m2

Features


  • Quiet area
  • Near bus route
  • Near amenities

Full Description


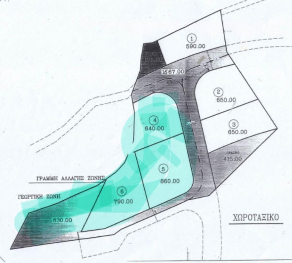
These 4 plots are located in "Agios Mamas" Polemi, Paphos. They can be sold together or separately and present an enticing prospect for prospective buyers:

Plot 3 - 650m² for €71,500

Plot 5 - 860m² for €94,600

Plot 6 - 790m² for €86,900

Plot 7 - 830m² for €91,300

The groundwork for subdivision is nearly complete, with only the final touches of road paving remaining. Notably, Plot 7 transition from agricultural to residential status underscores the evolving landscape and the potential for growth in the area.

With a Subdivision Permit secured for seven plots and nearly flat surfaces with oblong shapes, they offer an idyllic canvas for architectural creativity.

Each plot provides panoramic views of the surrounding landscape.

Plot 1, Plot 2 and Plot 4 , each spanning 590m² , 650m² and 640m² respectively, are retained from sale, perhaps reserved for future projects or considerations.

With planning zone H3, building ratio of 60%, coverage of 35% across two floors, and a height limit of 8.30 meters, there is ample scope.

• Type – Residential Plot

• Affected Area 100%

• Density: 60%

• Coverage 35%

• Parcel Area – 3,130m2

• 2 floors

• Height 8.3 Meters

• Planning Zone H3
Read more

Map may not show exact location

This property listing (ref: 5279) is an advertisement supplied by A.T & P.E Homes (Cyprus) Ltd and does not constitute property particulars. While aplaceinthesun.com (APITS Ltd.) requests all advertisers supply correct details, it does not carry out checks on the information supplied and cannot be held responsible for any inaccuracies. Aplaceinthesun.com recommends seeking independent legal advice prior to any overseas property purchase.
*Based on an exchange rate of 0.8705 from Euro to GBP. This rate is updated daily and is an indicative market rate supplied by A Place in the Sun Currency. Actual trading rates vary.