Premium New development
Back to results

3 Bed Apartment for sale

Estepona, Malaga, Andalucia, Spain

£374,336 *  [€430,000]

3 Bed Apartment for sale

Estepona, Malaga, Andalucia, Spain

£374,336 *  [€430,000]

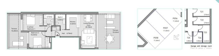
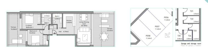
Property Details


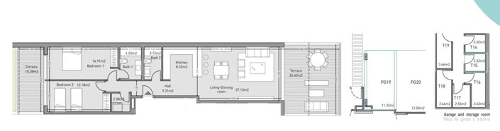
  • Bedrooms: 3
  • Bathrooms: 2
  • Habitable space: 92 m2

Features


  • Hot/Cold Air Conditioning
  • Storage Room
  • North
  • Yes
  • City
  • Alarm System
Read more

Full Description


Introducing a new contemporary development consisting of just 54 modern apartments and penthouses with two and three bedroom options.

The majority of the properties offer amazing sea views as the project sits within walking distance of some of the excellent beaches Estepona has to offer. The proximity to Estepona also means you are not far from all the amenities you can think of from bars and restaurants to hospitals and golf courses.

The properties feature modern design offering bright and spacious interiors that blend seamlessly with your spacious terrace space, thanks to large floor-to-ceiling windows which allow the sunlight to pour in.

Equipped and spacious open-plan kitchens blend with the living and dining areas, increasing the feeling of space. The bedrooms come with fitted wardrobes, while the master suite includes an en-suite bathroom.

The floors are porcelain or laminated and hot/cold air conditioning is pre-installed.

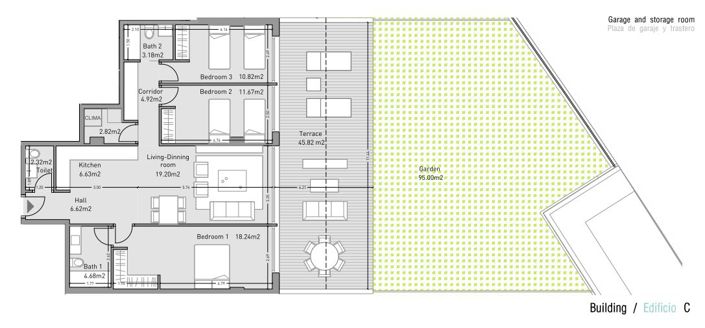
While the upper floors offer spacious terraces, the ground floor apartments include a generous private garden to enjoy the sun.

Communal areas in this exciting project include a swimming pool, playground, social club, gym, steam room, and sauna.

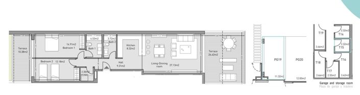
All properties include one parking space and a storage room.
Read more

Map may not show exact location

This property listing (ref: DPIe25533) is an advertisement supplied by Direct Property Investments and does not constitute property particulars. While aplaceinthesun.com (APITS Ltd.) requests all advertisers supply correct details, it does not carry out checks on the information supplied and cannot be held responsible for any inaccuracies. Aplaceinthesun.com recommends seeking independent legal advice prior to any overseas property purchase.
*Based on an exchange rate of 0.8705 from Euro to GBP. This rate is updated daily and is an indicative market rate supplied by A Place in the Sun Currency. Actual trading rates vary.