Premium New development

4 Bed Country House for sale

Chiusi, Siena, Tuscany, Italy

£1,453,817 *  [€1,670,000]

4 Bed Country House for sale

Chiusi, Siena, Tuscany, Italy

£1,453,817 *  [€1,670,000]

Property Details


  • Bedrooms: 4
  • Bathrooms: 4
  • Plot size: 20000 m2
  • Habitable space: 462 m2

Features


  • Restored

Full Description


Upon arriving at the farmhouse, one immediately has the sensation of immersing oneself in a lifestyle that restores the beauty of serenity and authenticity. The total surface area of all the buildings is approximately 420 sqm, divided between the main farmhouse, a partially renovated and partially to-be-restored annex, and highly functional technical rooms ideal for a countryside estate.

The typical farmhouse with Tuscan loggia extends over a gross surface area of approximately 300 sqm and is arranged over two levels in a perfect balance between rustic charm and modern comfort.
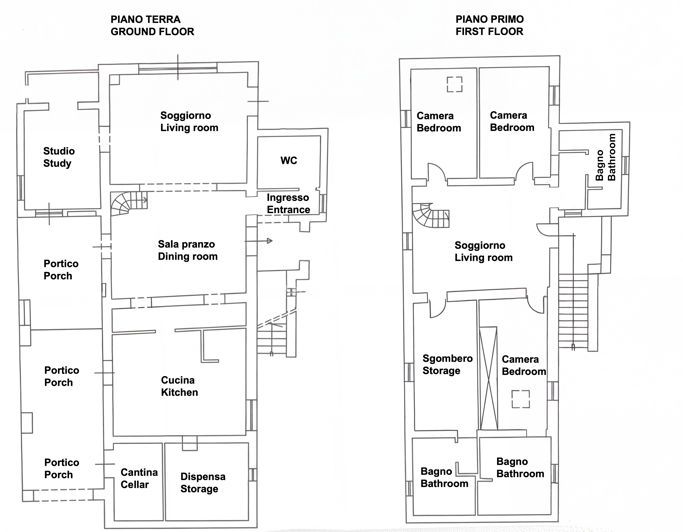
The ground floor welcomes guests into an authentic atmosphere, defined by the striking rhythm of the ancient structural arches. The heart of the home is the living area where, just beyond the characteristic entrance, we find the first room of a delightful lounge, featuring a stone fireplace and the staircase connecting the two floors of the farmhouse. From this living area, through an ancient arch, one reaches the dining area enhanced by a beautiful window overlooking the landscape. From the dining room there is access to a charming study. The first living area is complemented by a winter garden that creates a constant dialogue with the surrounding scenery. From the living area there is also access to the spacious kitchen, the functional heart of the residence, equipped with a traditional wood-fired oven and extending outdoors through a French door that leads directly to the large portico. The floor is completed by a finely finished guest bathroom and a charming cellar where excellent wines can rest.

From the internal staircase in the living area, we reach the first floor dedicated to the sleeping quarters. Upon arrival, there is a spacious sitting room with an imposing fireplace, from which the four bedrooms unfold, three with en suite bathrooms and one already prepared with plumbing connections to create an additional bathroom. The first floor is also accessible from the outside via an external staircase, at the top of which is the typical loggia. The interiors enjoy constant natural light, with windows framing the olive trees and the private land like natural paintings.

Enhancing the property is a 40 sqm annex already renovated, with a charming mezzanine currently used as storage space, alongside an additional 80 sqm of agricultural outbuildings ready for customized restoration, as well as technical rooms located within the park of the estate. The park extends over approximately 2 hectares, including about one hectare of landscaped garden with an irrigation system and a further hectare of beautiful olive grove. Within the park it is entirely possible to build a magnificent swimming pool in the position and dimensions to be chosen by the fortunate new owner. For those who love the land, there is the opportunity to expand the estate by purchasing an additional 19 hectares of land (arable land, woodland, and olive grove) at a total price of EUR 230,000.

In detail, the farmhouse comprises 14 rooms, specifically 3 living rooms, a kitchen, a study, a winter garden, four bedrooms, and four bathrooms.

STATE OF REPAIR
The building, whose origins date back to before 1800, underwent a meticulous restoration in 2015 that preserved the authentic sky-to-ground typology of the Tuscan farmhouse. The structure stands out for its exposed stone and brick masonry, the characteristic pitched roof with terracotta tiles, and the openings framed by brick arches, elements that highlight its historical value.

Inside, the charm of tradition is echoed by terracotta floors and ceilings with wooden beams and mezzane tiles, preserving the rustic soul of the residence.

UTILITIES
The property is presented in good condition and ready to be lived in, while still offering the new fortunate owners the opportunity to personalize both the first floor and the annexes. The full compliance of the systems and direct connection to all main utilities ensure simple management with no need for further works. The water supply is guaranteed by a private well with a purification system and storage tanks, with a total capacity of 40,000 liters, ensuring both domestic use and garden irrigation, which can be carried out through a perfectly functioning irrigation system. Heating is provided by a system with an LPG and wood-fired boiler, in good condition.

USE AND POTENTIAL USES
This farmhouse represents a perfect synthesis of historic prestige and design versatility. Its layout makes it ideal both as an exclusive private residence and as a refined hospitality property capable of attracting high-end international tourism.

LOCATION
Located in the vibrant heart of Tuscany, in the municipality of Chiusi, the property is set within a timeless hilly landscape. The residence enjoys a panoramic position with open views over the Sienese countryside, ensuring privacy and tranquility while remaining close to main services.

One of its added values is its strategic location: the farmhouse lies in the Municipality of Chiusi, between Cetona, Montepulciano and Sarteano, a crossroads of outstanding food and wine traditions and some of the most charming historic villages of the Val di Chiana. This privileged setting allows you to experience authentic Tuscany just minutes from renowned cultural and thermal centers. The Chiusi Chianciano Terme A1 exit is only 5 km away, approximately 8 minutes.

LAND REGISTRY DETAILS
There are several matters concerning the property that require verification, specifically:
The glass enclosures installed in the ground floor portico are not authorized, and the seller’s technician is currently assessing whether and how they may be regularized. Initial findings indicate that regularization may not be possible; therefore, they must either be accepted in their current condition or removed.

On the first floor, in one of the bedrooms, the access door has been modified by opening a structural wall; a review is underway to determine how this can be regularized.

In the dependance, the mezzanine level was also built without authorization and, according to preliminary investigations, cannot be regularized; it must therefore either be accepted in its current state or demolished.

There are additional minor layout modifications, all of which can be regularized.

OWNERSHIP DETAILS AND EVENTUAL CONTRACTUAL OBLIGATIONS
The property is registered to private individual(s) and the sale will be subject to registration tax in accordance with current regulations (see purchase costs from a private seller).
Read more

Map may not show exact location

This property listing (ref: 9952) is an advertisement supplied by Great Estate Immobiliare Srl and does not constitute property particulars. While aplaceinthesun.com (APITS Ltd.) requests all advertisers supply correct details, it does not carry out checks on the information supplied and cannot be held responsible for any inaccuracies. Aplaceinthesun.com recommends seeking independent legal advice prior to any overseas property purchase.
*Based on an exchange rate of 0.8705 from Euro to GBP. This rate is updated daily and is an indicative market rate supplied by A Place in the Sun Currency. Actual trading rates vary.