Premium New development

Plot for sale

Lagoa, Algarve, Portugal

£858,055 *  [€995,000]

Plot for sale

Lagoa, Algarve, Portugal

£858,055 *  [€995,000]

Property Details


  • Bedrooms: 0
  • Bathrooms: 0
  • Plot size: 35493 m2
  • Habitable space: 299 m2

Features


  • Close to the beach
  • Energy Certificate: free

Full Description


An exceptional opportunity to acquire a unique property in Vale del Rei, just minutes from the renowned Praia da Marinha, widely regarded as one of the most beautiful beaches in Europe. Set within the peaceful Algarve countryside yet close to the coastlines cliffs and turquoise waters, this offering combines privacy and prime location.

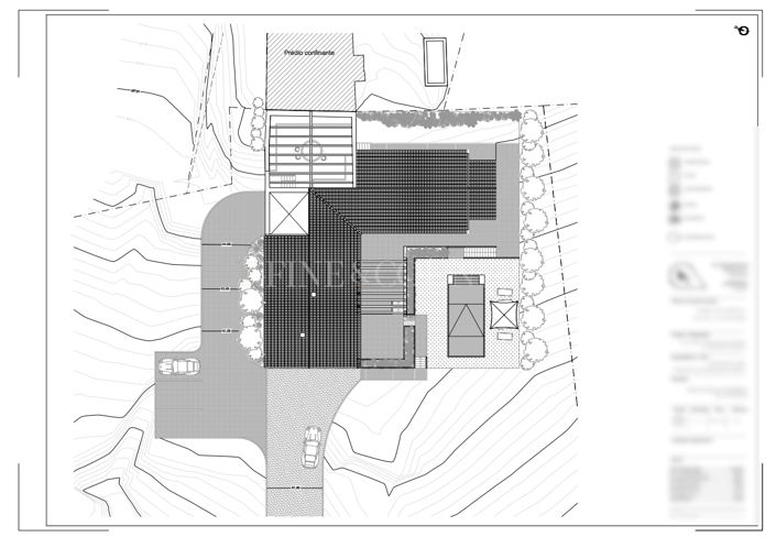
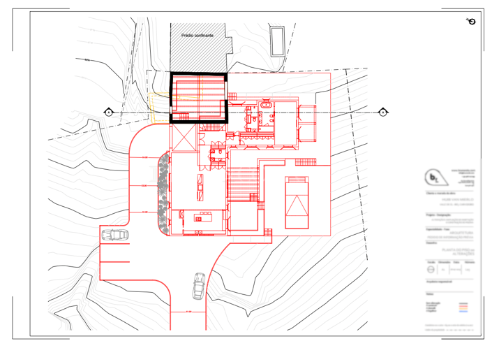
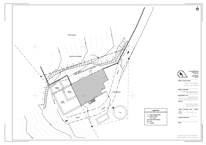
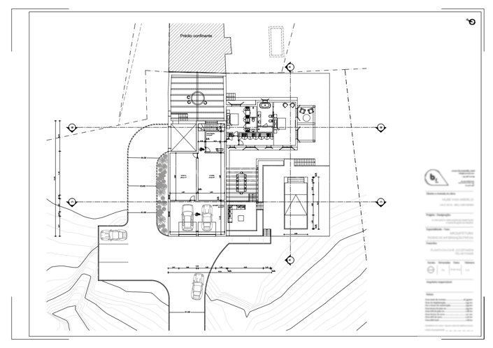
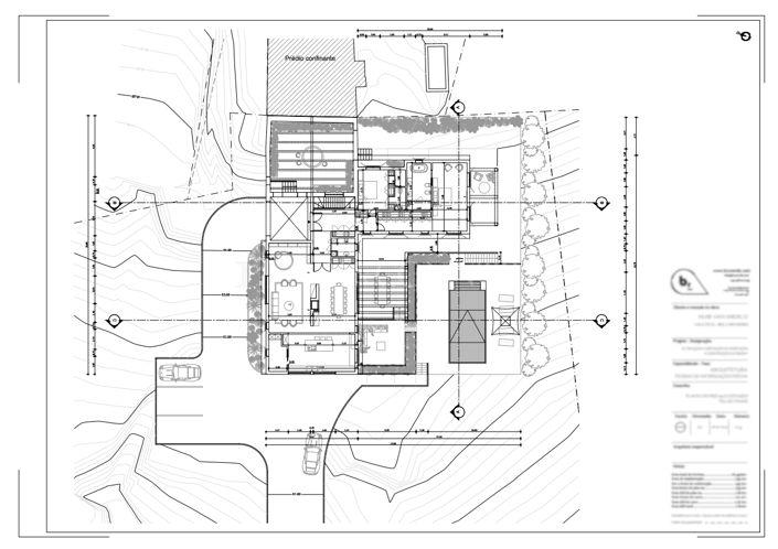
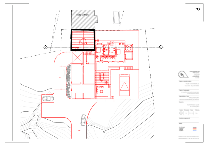
The sale includes three distinct plots: a rustic plot with 19,160 m², a mixed plot with 16,350 m² where an approved architectural project is in place, and an additional urban plot measuring 433 m². Together, these parcels create a substantial landholding with exceptional potential, ensuring privacy and long-term value in one of the Algarves most desirable areas.

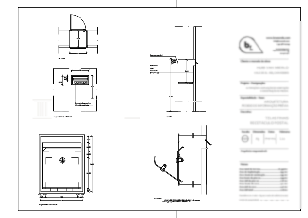
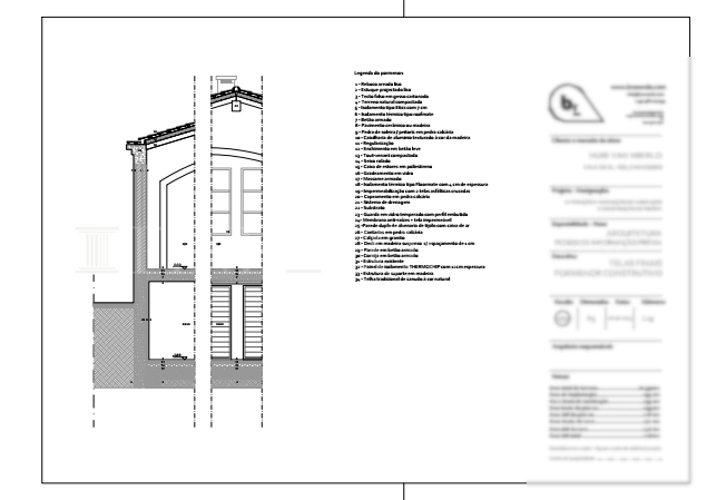
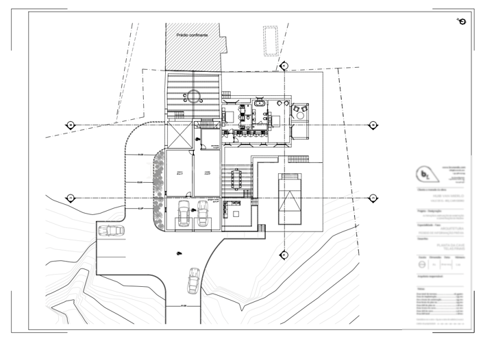
The mixed plot benefits from full project approval for the construction of a villa designed to blend harmoniously with its natural surroundings. The villa features 299 m² of build area complemented by a spacious 171 m² basement, offering versatile. The project also includes a private swimming pool and generous terraces, designed to maximize outdoor living and the Algarves year-round sunshine.

Located just a short drive from the coast and close to the charming towns of Carvoeiro and Lagoa, this property offers tranquility without isolation, with Faro International Airport approximately 45 minutes away. With its extensive land area, approved villa project, and proximity to Praia da Marinha, this is a rare opportunity to create a bespoke residence or secure a valuable investment in the heart of the Algarve.

Energy Rating Exempt

Fine & Country Algarve is part of the international network of F&C offices in over 300 locations worldwide, we have four offices in the Algarve covering the whole region from east to west. We also work closely with the Fine & Country offices elsewhere in Portugal and internationally. In the Algarve, Fine & Country has a vast portfolio of properties for sale and a dedicated team of professionals with in-depth market knowledge.

* All feature(s) equipment(s) mentioned in this description are subject to final verification and agreement between vendors and buyers.
- REF: FC1092VCP
Read more

Map may not show exact location

This property listing (ref: FC1092VCP) is an advertisement supplied by Fine and Country Algarve and does not constitute property particulars. While aplaceinthesun.com (APITS Ltd.) requests all advertisers supply correct details, it does not carry out checks on the information supplied and cannot be held responsible for any inaccuracies. Aplaceinthesun.com recommends seeking independent legal advice prior to any overseas property purchase.
*Based on an exchange rate of 0.8624 from Euro to GBP. This rate is updated daily and is an indicative market rate supplied by A Place in the Sun Currency. Actual trading rates vary.