Premium New development

5 Bed Country House for sale

Coin, Malaga, Andalucia, Spain

£365,631 *  [€420,000]

5 Bed Country House for sale

Coin, Malaga, Andalucia, Spain

£365,631 *  [€420,000]

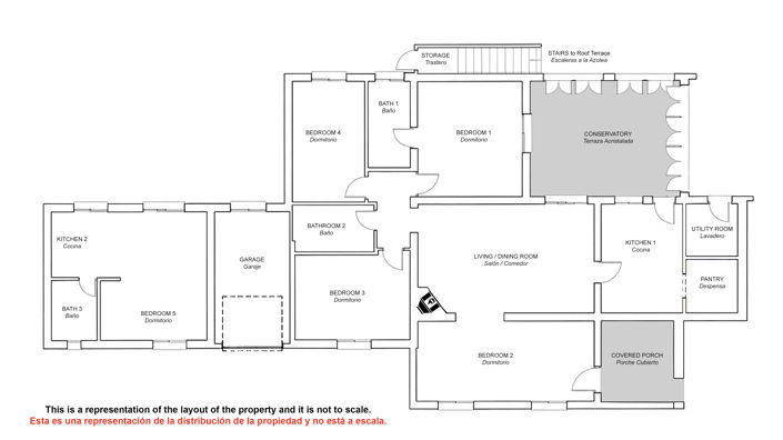
Property Details


  • Bedrooms: 5
  • Bathrooms: 3
  • Emissions: E
  • Consumption: E
  • Plot size: 6750 m2
  • Habitable space: 205 m2

Features


  • Countryside location
  • Garden views
  • Mountain views
  • Countryside views
  • Outdoor swimming pool
  • Private swimming pool
  • Air conditioning
  • Fireplace
  • Storage space
Read more

Full Description


?? Set in a peaceful location with beautiful open views over the village of Alhaurín el Grande, this delightful single-level country home offers the perfect blend of privacy, comfort and Andalusian charm.

The main house features:

• A fully equipped kitchen with direct access to a large terrace
• A separate pantry
• A bright living room
• A dining room with fireplace, perfect for cosy evenings
• 3 comfortable bedrooms
• 2 bathrooms, including an en-suite in the master bedroom
• A separate utility room

? A true highlight: the conservatory

The kitchen opens onto a spacious covered terrace/veranda that serves as an additional living area. Currently used as a dining space, it can be fully opened during summer, allowing year-round enjoyment.

Large glass doors offer stunning views of the swimming pool, garden and surrounding countryside.

?? Independent guest apartment

The property also benefits from a charming guest apartment with kitchenette and bathroom — ideal for visiting family and friends or as a potential rental opportunity.

?? Great potential for extension

At the rear of the house, a large storage room — currently used for gardening equipment — could easily be incorporated into the main house for additional living space.

Originally, the house featured 3 bedrooms, a separate dining room and a living room, meaning the original layout can be reinstated if desired.

?? Ideal location:

• 4.5 km to La Trocha shopping centre
• 6 km to Alhaurín el Grande town centre
• Approx. 1 km to the A355
• 30 minutes to Málaga Airport

This property offers the perfect combination of countryside tranquillity and convenient access to amenities — ideal as a permanent residence or holiday retreat under the Andalusian sun.

The listing agent, on behalf of the vendor, provides this information as guidance only and is not contractual. While efforts have been made to ensure accuracy, buyers should verify all details through their own inspections and inquiries. The data may be subject to errors, price changes, availability, or withdrawal without notice.
Read more

Map may not show exact location

This property listing (ref: F5314471) is an advertisement supplied by Ideal Country Property and does not constitute property particulars. While aplaceinthesun.com (APITS Ltd.) requests all advertisers supply correct details, it does not carry out checks on the information supplied and cannot be held responsible for any inaccuracies. Aplaceinthesun.com recommends seeking independent legal advice prior to any overseas property purchase.
*Based on an exchange rate of 0.8705 from Euro to GBP. This rate is updated daily and is an indicative market rate supplied by A Place in the Sun Currency. Actual trading rates vary.