Premium New development

4 Bed House/Villa for sale

Lefkakia, Argolis, Peloponnese, Greece

£436,110 *  [€500,000]

4 Bed House/Villa for sale

Lefkakia, Argolis, Peloponnese, Greece

£436,110 *  [€500,000]

Property Details


  • Bedrooms: 4
  • Bathrooms: 2
  • Plot size: 1000 m2
  • Habitable space: 166 m2

Full Description


Description
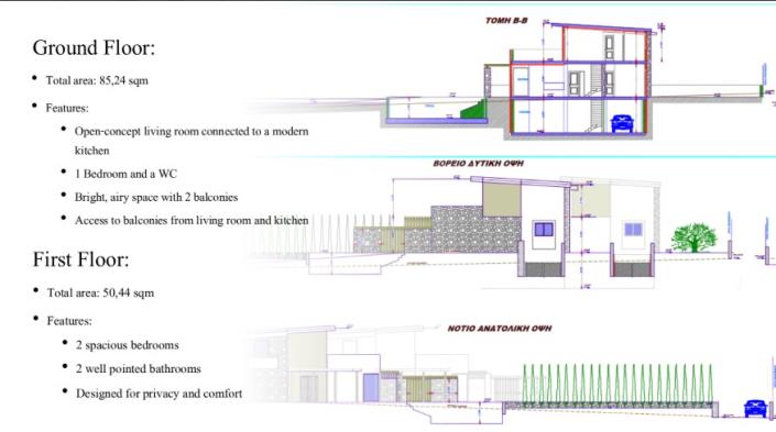
This under-construction detached house in Asini offers a well-designed layout across three levels, totaling 166 sq.m. The ground floor features an open kitchen and living room area, along with a bedroom and bathroom, providing convenience for daily living. The upper level comprises three spacious bedrooms and an additional bathroom, while the basement includes enclosed parking for added security. Set on a plot of approximately one stremma (about 1000 sq.m.), the property allows for outdoor activities and includes space designated for a swimming pool.

The combination of beautiful aesthetics, functionality, and quality construction makes this home an excellent opportunity for those seeking comfort and modern living in Asini.

### Highlights
– Under construction with quality materials throughout.
– Ground floor includes kitchen, living room, bedroom, and bathroom.
– Upper level features three spacious bedrooms and a bathroom.
– Enclosed parking available in the basement.
– Plot size of approximately 1000 sq.m. allows for outdoor activities.
– Space allocated for a swimming pool enhances relaxation options.
– Swimming pool
Read more

Map may not show exact location

This property listing (ref: MG873) is an advertisement supplied by Makelaardij Griekenland and does not constitute property particulars. While aplaceinthesun.com (APITS Ltd.) requests all advertisers supply correct details, it does not carry out checks on the information supplied and cannot be held responsible for any inaccuracies. Aplaceinthesun.com recommends seeking independent legal advice prior to any overseas property purchase.
*Based on an exchange rate of 0.8722 from Euro to GBP. This rate is updated daily and is an indicative market rate supplied by A Place in the Sun Currency. Actual trading rates vary.