Premium New development
Back to results

3 Bed Townhouse for sale

La Serena Golf Resort, Murcia, Region of Murcia, Spain

£361,278 *  [€415,000]

3 Bed Townhouse for sale

La Serena Golf Resort, Murcia, Region of Murcia, Spain

£361,278 *  [€415,000]

Property Details


  • Bedrooms: 3
  • Bathrooms: 2

Features


  • Three bedrooms and two bathroom FRONTLINE golf villas
  • Spacious basement underbuilds with garage
  • Private heated swimming pool
  • 3 solarium terraces
  • Underfloor heating in bathrooms and vented AC
  • White goods excluding washing machine and LEDs included
  • Golf, lake and sea views
  • Summer kitchen
  • SPECIAL OFFERS APPLY – contact us for more information.
Read more

Full Description


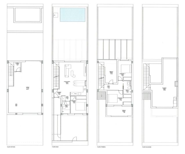
SPECIAL OFFERS APPLY – contact us for more info. We think these properties are amazing you get so much for your money and views are breathtaking from both sides. Three bedroom two bathroom villas with garage/underbuild and private pool located on La Serna Golf Resort close to Los Alcazares Old town where you have the beach and some great Spanish restaurants like La Tropical, La Encarnacion and Ramones. There is so much outside space with garden to front and rear, first floor terraces front and rear and a roof solarium.

On entering the front east facing garden from street level there are a few steps up to the front door  and straight infront of you is the stairs that lead down to the basement where you have space for a few cars or you could convert some of into a games room, cinema room or gym. On the ground floor you will find a double bedroom with fitted wardrobes, a family bathroom and an open plan kitchen dining lounge with patio doors to the west facing garden which is tiled, walled and has great golf views and a heated pool.

Upstairs are two further double bedrooms with fitted wardrobes, one of the bedrooms has access onto an east facing terrace with golf, lake and sea views . There is another family bathroom and from the hall you access another west facing terrace with golf and lake views and the stiars to the spacious roof solarium, which has a summer kitchen and a cupboard for the aerothermal boiler. This outside space has 360 degree stunning views.  They come with underfloor heating in the bathrooms, LEDS, white goods, heated pool and vented Ac so all you need to buy is the furniture and soft furnishings. Ready in October 2026 so not long to wait.

Contact us to arrange a viewing.
Read more

Map may not show exact location

This property listing (ref: 27411) is an advertisement supplied by MGP - Golf & Coastal Properties and does not constitute property particulars. While aplaceinthesun.com (APITS Ltd.) requests all advertisers supply correct details, it does not carry out checks on the information supplied and cannot be held responsible for any inaccuracies. Aplaceinthesun.com recommends seeking independent legal advice prior to any overseas property purchase.
*Based on an exchange rate of 0.8705 from Euro to GBP. This rate is updated daily and is an indicative market rate supplied by A Place in the Sun Currency. Actual trading rates vary.