Premium New development

3 Bed House for sale

Verchaix, Haute-Savoie, Rhone-Alpes, France

£501,880 *  [€574,000]

3 Bed House for sale

Verchaix, Haute-Savoie, Rhone-Alpes, France

£501,880 *  [€574,000]

Property Details


  • Bedrooms: 3
  • Bathrooms: 2

Features


  • Terrace
  • Parking
  • Aerothermal heating

Full Description


Terres De L'Hottis’ is a new development being marketed in Verchaix, offering T2 to T4 flats and semi-detached villas with private gardens.

Nestling in Verchaix in the heart of the authentic Vallée du Haut Giffre, this residence offers immediate access to the village centre, giving you quick and easy access to a range of amenities, including the Lac Bleu, as well as a host of activities (lake, tennis court, accrobranche, etc.).

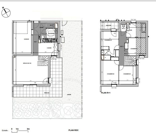
This semi-detached house has 2 levels:

* The garden level comprises an entrance hall, a utility room and a separate Wc. The kitchen is semi-open onto the living room, which comprises a dining area and a lounge. From here, you can walk out onto the property's terrace and garden.

* Upstairs, 3 beautiful bedrooms, one with its own shower room and balcony access. A separate toilet and bathroom complete this level.

In addition, the house has a garage with direct access to the property and an uncovered parking space nearby.

Bonus: You'll also benefit from the latest thermal regulations (Rt2012), including a heat pump and multiple construction guarantees.

The homes on offer have been designed to meet today's needs as closely as possible, and include one or more spacious balconies and/or terraces where you can have lunch or relax.

They have also been designed with sustainability in mind:

- A heat pump for heating and hot water production
- Secure, fully-equipped bicycle storage facilities to encourage environmentally-friendly mobility.
- Homes that can be customised to suit individual tastes and desires.

Some homes are configurable:

- Configurable floor plans that allow you to create 1 or 2 spaces to suit your needs.
- Built-in storage for a functional interior.

This project can be considered as a primary residence or as an investment with all the benefits of new build.
Read more

Map may not show exact location

This property listing (ref: Af4elgsrbmbc71ck) is an advertisement supplied by French Gold Property and does not constitute property particulars. While aplaceinthesun.com (APITS Ltd.) requests all advertisers supply correct details, it does not carry out checks on the information supplied and cannot be held responsible for any inaccuracies. Aplaceinthesun.com recommends seeking independent legal advice prior to any overseas property purchase.
*Based on an exchange rate of 0.8744 from Euro to GBP. This rate is updated daily and is an indicative market rate supplied by A Place in the Sun Currency. Actual trading rates vary.