Premium New development

3 Bed Property for sale

Carvoeiro, Algarve, Portugal

£911,193 *  [€1,044,500]

3 Bed Property for sale

Carvoeiro, Algarve, Portugal

£911,193 *  [€1,044,500]

Property Details


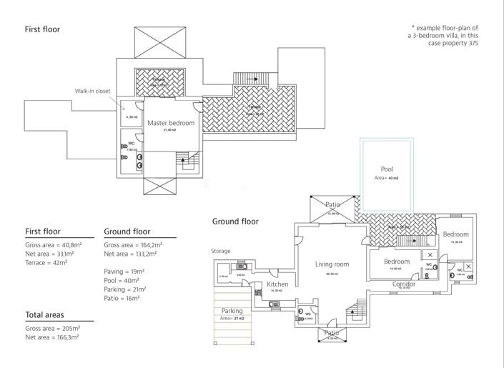
  • Bedrooms: 3
  • Bathrooms: 4
  • Habitable space: 232 m2

Features


  • Air conditioning
  • Furnished
  • Swimming pool
  • Terrace
  • Energy Certificate: B-

Full Description


This beautifully designed 3-bedroom villa, located in a serene corner of Carvoeiro, offers the perfect setting for a peaceful family lifestyle. With its own private pool and lush gardens, it provides privacy and space for relaxation.

The property features an open-plan living and dining area, three en-suite bedrooms, a walk-in closet, and expansive terraces for outdoor dining and lounging. Premium finishes such as Daikin air conditioning and high-end kitchen appliances ensure that comfort meets luxury in every detail.

Beyond privacy, residents can enjoy the convenience of high-end amenities, including a restaurant, spa, gym, and multiple pools. Families will appreciate the playgrounds, sports facilities, and kid-friendly activities, creating the perfect environment for both relaxation and play.

While the villa provides the independence and tranquillity of a private home, owners have the option to participate in a rental program for added flexibility and potential investment returns when the property is not in use.

Experience the best of both worldssecluded family living with all luxury comforts, set against the stunning backdrop of the Algarves natural beauty.

Fine & Country Algarve is part of the international network of F&C offices in over 300 locations worldwide, we have four offices in the Algarve covering the whole region from east to west. We also work closely with the Fine & Country offices elsewhere in Portugal and internationally. In the Algarve, Fine & Country has a vast portfolio of properties for sale and a dedicated team of professionals with in-depth market knowledge.

* The feature(s) equipment(s) mentioned in this description are subject to verification and agreement between the vendors and buyers.

EPC: B- - REF: 378/BZ_VL3
Read more

Map may not show exact location

This property listing (ref: 378/BZ_VL3) is an advertisement supplied by Fine and Country Algarve and does not constitute property particulars. While aplaceinthesun.com (APITS Ltd.) requests all advertisers supply correct details, it does not carry out checks on the information supplied and cannot be held responsible for any inaccuracies. Aplaceinthesun.com recommends seeking independent legal advice prior to any overseas property purchase.
*Based on an exchange rate of 0.8724 from Euro to GBP. This rate is updated daily and is an indicative market rate supplied by A Place in the Sun Currency. Actual trading rates vary.