2 Bed Property for sale
Treasure Island, Pinellas County, Florida, United States
Full Description
Welcome to your barefoot-ready escape on Treasure Island—an elevated cedar beach cottage where the Gulf is literally just steps from your door. Set beside newly restored sugar sand beaches, this charming home delivers the carefree feel of an oceanside resort with the comfort of home. All living space is perched on the second floor, accessed by a short flight of stairs that opens to a long, breezy porch with peek-a-boo ocean views—perfect for morning coffee, post-beach sunsets, and salty air evenings. This upper level experienced no damage during the hurricanes of 2024.
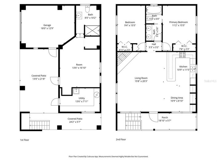
Inside, the vibe is open, airy, and inviting. A spacious open-concept layout flows effortlessly from the large kitchen—complete with a breakfast bar and built-in storage—into a generous living room anchored by a grand wood-burning fireplace. High ceilings enhance the sense of space, while accent windows lining the west ceiling accentuate the room with natural light and add a dramatic architectural touch. Tucked away at the rear of the home are two sizeable bedrooms connected by a shared, adjoining bathroom featuring a jetted spa tub and dual vanity sinks—your own private retreat after a sun-soaked day. A separate laundry room with a utility sink on the ground floor adds everyday convenience. Downstairs is where function meets opportunity. Enjoy a one-car garage with a new mechanical door, plus two separate carport spaces—say goodbye to beach parking stress forever. The entire lower level is enclosed and formerly plumbed during a prior ownership, offering exciting potential for a workshop, storage, or creative space. Additional highlights include: Hurricane shutters downstairs & 3M protective window film upstairs, Roof (2021), A/C (2021), New garage door, water heater, refrigerator and select doors. This is a home for those who live for the outdoors—meditations at sunrise, long walks on powdery sand, and evenings listening to the Gulf breeze—and who appreciate finding a smart value in an unbeatable location. Beachy, breezy, and beautifully positioned, this Treasure Island cottage is your chance to own a slice of Florida’s laid-back coastal lifestyle without the resort price tag.
Read more