Premium New development
Back to results

4 Bed Property for sale

Ficulle, Terni, Umbria, Italy

£169,757 *  [€195,000]

4 Bed Property for sale

Ficulle, Terni, Umbria, Italy

£169,757 *  [€195,000]

Property Details


  • Bedrooms: 4
  • Bathrooms: 2
  • Habitable space: 274 m2

Features


  • Restored

Full Description


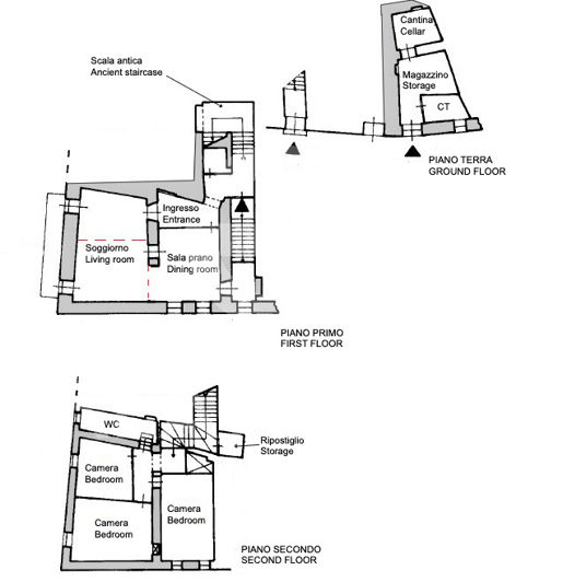
Between Umbria and Tuscany, in the historic center of a beautiful village stands this prestigious palace with balcony. The palace of historical origin is partly an "earth to sky structure" with an apartment, and is about 200 square meters in addition to service areas and is composed of: independent entrance which serves an ancient vaulted staircase of characteristic bricks, which, reminiscent its medieval origins and which in the past served two apartments. It is currently a large and single residence but which can still be divided again into two units. In fact, the house now has a large 90's vintage style apartment with a day floor consisting of: hallway, bathroom, kitchenette + pantry, a large living room with fireplace and balcony; this living room, which can be extended thanks to a Nomentana division, currently houses a very versatile multipurpose room which can become a study, a TV room, a large kitchen or a bedroom but which can be reopened and become a living room again as it was originally. Going up the suggestive polished stone staircase with the medieval vaulted brick ceiling, you reach the sleeping area where there are three bedrooms and a bathroom. Given the generous size of the rooms it is possible to obtain other bathrooms. Above this floor we have the attics with small windows and light points where you can obtain storage rooms and more. On the ground floor there is a mezzanine with ancillary rooms, boiler room and cellar where the old and original solid wood porthole is kept. Possibility of purchasing large rooms on the ground floor currently used as a shop with an interesting rental income. Unique in its kind, the property represents one of the most important and strategic palace's in the town with suggestive views of the alleys, the square, the church and the bell tower. Il Pacifico has a beautiful balcony and thanks to its location in the main square of the village, it is a rare opportunity to experience the village with its peace and tranquillity.

STATE OF REPAIR
The property is immediately habitable and has a vintage style with 90's finishes but it is possible to transform everything into a more modern key, given the large spaces available, the great potential and versatility of the property.

UTILITIES
All utilities are active and functioning including methane gas for heating. Present fireplace and pallet stove. Services and shops near the property.

USE AND POTENTIAL USES
The owners currently use the house in the historic center as a second home, but given the surfaces, it could become, as well as a large and luxurious residence where you can reside and share with friends and family, an accommodation facility to be used for rentals, thus obtaining an income. Given the strategic and well-served position, it is convenient for reaching and visiting the major centers of Umbria and Tuscany. An interesting investment with ample potential, thanks to its size and the possibility of dividing it into several units. Another interesting potential would be to complete the purchase with the underlying optional commercial space, where there is currently a profitable lease in place; info and conditions in the agency.

LOCATION
In Umbria, in the green heart of Italy, in a hilly position, in the small and quiet village of Ficulle with services below the property. The prestigious palace is in a central position, with one side along the suggestive alley and the other on the central square of the town. The village of Ficulle, complete with services, is a characteristic medieval village between Umbria, Lazio and Tuscany and can be easily reached in 10 minutes by car from the main motorway and railway networks of Fabro/Ficulle which connect Rome, Florence with all of central Italy and its airports.

LAND REGISTRY DETAILS
The Great Estate group carries out a technical due diligence on each property acquired through the seller's technician, which allows us to know in detail the urban and cadastral status of the property. This due diligence may be requested by the client at the time of a real interest in the property.

OWNERSHIP DETAILS AND EVENTUAL CONTRACTUAL OBLIGATIONS
This property is being sold by a natural person. For the possible optional purchase of the commercial premises, the sale and feasibility will be examined during the inspection phase.
Read more

Map may not show exact location

This property listing (ref: 7824) is an advertisement supplied by Great Estate Immobiliare Srl and does not constitute property particulars. While aplaceinthesun.com (APITS Ltd.) requests all advertisers supply correct details, it does not carry out checks on the information supplied and cannot be held responsible for any inaccuracies. Aplaceinthesun.com recommends seeking independent legal advice prior to any overseas property purchase.
*Based on an exchange rate of 0.8705 from Euro to GBP. This rate is updated daily and is an indicative market rate supplied by A Place in the Sun Currency. Actual trading rates vary.