Premium New development
Back to results

16 Bed Country House for sale

Corciano, Perugia, Umbria, Italy

£1,201,358 *  [€1,380,000]

16 Bed Country House for sale

Corciano, Perugia, Umbria, Italy

£1,201,358 *  [€1,380,000]

Property Details


  • Bedrooms: 16
  • Bathrooms: 13
  • Plot size: 27500 m2
  • Habitable space: 1324 m2

Features


  • Pool
  • Restored

Full Description


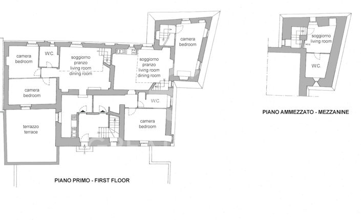
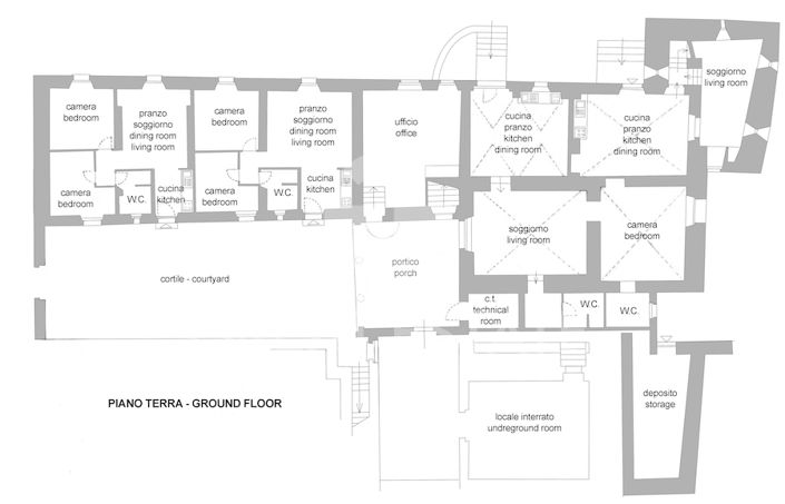
Located in the Umbrian countryside, between the cities of Perugia and Lake Trasimeno, the property was completely restored in the early 1990's and still retains all its ancient charm. Currently used as an accommodation facility, it is divided into 10 apartments, 8 of which are located inside the fortress and 2 in an adjacent building. In the basement there is a dining room with a professional kitchen. There are also spaces for reception, laundry and storage. The total area is approximately 1,200 square meters. The splendid garden measures 4,500 sqm, and here we find a 15x7.5 meter swimming pool and a tennis court. Outside the garden, there is more land owned, a vineyard, an olive grove with 120 olive trees, and arable land, all for a further total of 2.3 hectares.

STATE OF REPAIR
Classic finishes, brick floors, wooden floors and terracotta tiles. The windows are double glazed larch wood. The attics are partly brick and partly wooden vaults. The roof was insulated with 6 cm insulation. The state of maintenance is optimal.

UTILITIES
Methane gas heating system, there are 11 boilers that make each apartment independent from a thermal point of view. The air conditioning system is present only in some of the apartments. As for the water supply, in addition to the municipal aqueduct, there is a well and a 60 cubic meter rainwater collection tank.

USE AND POTENTIAL USES
The current destination is a tourist accommodation facility.

LOCATION
Located in the countryside, but not isolated, just 10 minutes by car from the cities of Perugia and Lake Trasimeno.

LAND REGISTRY DETAILS
The Great Estate group carries out a technical due diligence on each property acquired through the seller's technician, which allows us to know in detail the urban and cadastral status of the property. This due diligence may be requested by the client at the time of a real interest in the property.

OWNERSHIP DETAILS AND EVENTUAL CONTRACTUAL OBLIGATIONS
No constraints.
Read more

Map may not show exact location

This property listing (ref: 7594) is an advertisement supplied by Great Estate Immobiliare Srl and does not constitute property particulars. While aplaceinthesun.com (APITS Ltd.) requests all advertisers supply correct details, it does not carry out checks on the information supplied and cannot be held responsible for any inaccuracies. Aplaceinthesun.com recommends seeking independent legal advice prior to any overseas property purchase.
*Based on an exchange rate of 0.8705 from Euro to GBP. This rate is updated daily and is an indicative market rate supplied by A Place in the Sun Currency. Actual trading rates vary.