Premium New development
Back to results

4 Bed Country House for sale

Corciano, Perugia, Umbria, Italy

£774,789 *  [€890,000]

4 Bed Country House for sale

Corciano, Perugia, Umbria, Italy

£774,789 *  [€890,000]

Property Details


  • Bedrooms: 4
  • Bathrooms: 2
  • Plot size: 4640 m2
  • Habitable space: 525 m2

Features


  • Pool
  • Restored

Full Description


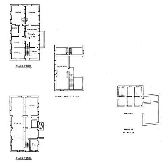
This majestic property boasts a gross living area of approximately 380 sqm, spread across three levels. It features a variety of spaces that combine comfort and functionality, blending elements of both antique and modern styles.

The ground floor comprises the living area, a guest bathroom and a storage room. The spacious kitchen with dining area is connected to a large living room characterized by classic Umbrian-Tuscan farmhouse elements, including wooden beam ceilings, terracotta floors and a big central fireplace. This area creates a warm and convivial atmosphere.

An internal staircase leads to the first floor, which opens onto a second living room and is complemented by four bedrooms, two of which feature mezzanines, a study, and a bathroom. The floor is completed by an attic space accessible from one of the bedrooms, ideal for use as storage.

The property also includes an outbuilding converted into a tavern, covering around 42 sqm, entirely constructed in wood and featuring large windows. Inside, there is a built-in kitchen and dining area, perfect for entertaining guests during lunches or dinners.

The external area encompasses a garden park of approximately 4,800 sqm with a heated infinity pool measuring 14 x 7 meters, allowing enjoyment even when the weather is cooler. Completing the outdoor amenities is a pool house of about 15 sqm. This wooden annex houses a sauna, a small gym area and a convenient bathroom, ideal for refreshing after a swim or a day relaxing in the sun without needing to return to the main house. Beneath the pool house lies the entire technical pool room, including the collection tank. Furthermore, thanks to the property's features, it is possible to install a photovoltaic system to enhance energy efficiency.

The tranquil hillside location makes this property an exclusive retreat, with easy access to medieval villages and Umbrian art cities, offering unique opportunities for those who cherish culture, nature and a refined lifestyle.

STATE OF REPAIR
The entire renovation was carried out approximately 25 years ago using the most innovative techniques available at the time. The structure is in excellent condition, having been meticulously maintained by owners who pay great attention to detail. Externally, the property features stone façades. Inside the main farmhouse, there are wooden ceilings and terracotta flooring. The property benefits from good exposure to sunlight and the interiors enjoy excellent natural brightness.

UTILITIES
The property is fully operational, equipped with all main services and properly connected to all utilities. All systems comply with regulations and are in perfect working order. Water supply is guaranteed through connection to the public aqueduct. The heating system is autonomous and powered by LPG.

USE AND POTENTIAL USES
The property is suitable both as a private residence and as a potential tourist-residential investment, thanks to its spacious areas, captivating views and a strategic location in the Umbrian hinterland.

LOCATION
The property is located in the municipality of Corciano; the distance to the main services is 3 km. Distance from major airports: Perugia 30 km, Ancona 155 km, Florence 145 km, Rome 200 km

LAND REGISTRY DETAILS
The Great Estate group conducts, through the seller's technician, a technical due diligence on every acquired property, allowing us to thoroughly understand the urban and cadastral situation of each estate. This due diligence can be requested by the client upon genuine interest in the property.

OWNERSHIP DETAILS AND EVENTUAL CONTRACTUAL OBLIGATIONS
The property is registered under individual ownership and the sale will be subject to registration tax according to current regulations (see purchase costs from private individuals).
Read more

Map may not show exact location

This property listing (ref: 10055) is an advertisement supplied by Great Estate Immobiliare Srl and does not constitute property particulars. While aplaceinthesun.com (APITS Ltd.) requests all advertisers supply correct details, it does not carry out checks on the information supplied and cannot be held responsible for any inaccuracies. Aplaceinthesun.com recommends seeking independent legal advice prior to any overseas property purchase.
*Based on an exchange rate of 0.8705 from Euro to GBP. This rate is updated daily and is an indicative market rate supplied by A Place in the Sun Currency. Actual trading rates vary.