Premium New development

3 Bed Townhouse for sale

Pedrógão Pequeno, Castelo Branco, Portugal

£248,604 *  [€285,000]

3 Bed Townhouse for sale

Pedrógão Pequeno, Castelo Branco, Portugal

£248,604 *  [€285,000]

Property Details


  • Bedrooms: 3
  • Bathrooms: 3
  • Habitable space: 196 m2

Full Description


In the historic centre of Pedrógão Pequeno — one of the most authentic Schist Villages, surrounded by natural landscapes and the majestic Cabril reservoir — lies this fully renovated historic townhouse, ready to move into. Dating back to the mid-19th century, it preserves original architectural features that give it soul and identity, such as stone frames, wooden interior shutters, traditional lintels, and a beautiful Station of the Way of the Cross embedded in the façade, dated 1865 — a rare and admirable heritage detail.
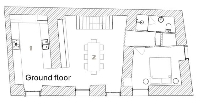
On the ground floor, the house welcomes you with a spacious, bright room full of character, including a small subterranean space ideal for a wine cellar or storage, and beside it a room prepared to accommodate a kitchen, still customisable by the buyer, allowing the creation of an ideal culinary space. On this floor there is also a versatile room that can function as an office, bedroom or second living room, benefiting from direct access to the street — ideal for those who need an independent workspace or an additional area. This level also includes a full bathroom.
On the first floor, a central lounge stands out with its high ceiling and abundant light, creating a spacious and welcoming atmosphere. On either side are two elegant suites, both with private bathrooms equipped with modern materials and solutions. This level also includes access to an attic intended for additional storage.
The rooftop is one of the house’s great attractions: a private terrace with excellent sun exposure and open views over the historic houses and surrounding landscape. Equipped with a stone counter and water point, it offers the ideal setting for outdoor meals, socialising, or moments of rest in a peaceful and inspiring environment.
The full renovation has brought maximum comfort to the house: central heating with cast-iron radiators, double-glazed windows, a new insulated roof, new electrical, water and sewage installations, wooden flooring and refurbished doors. Hot water is supplied by an efficient heat pump, ensuring modern energy performance.
Living in Pedrógão Pequeno means embracing an authentic lifestyle, surrounded by nature, stunning forest trails and paths always close to the Zêzere River. The Cabril reservoir, located just a few minutes away, provides river beaches, water activities and breathtaking scenery. Proximity to the IC8 ensures quick access to cities such as Coimbra, Lisbon and Porto, making this location particularly strategic.
This is a rare opportunity to acquire a fully renovated historic home with views, modern comfort and a unique setting in one of the most charming areas of the Central Region. Perfect as a permanent residence, weekend retreat or local accommodation project, as its location is absolutely ideal for that purpose, with easy parking nearby.
Read more

Map may not show exact location

This property listing (ref: 1366) is an advertisement supplied by Esfera Real and does not constitute property particulars. While aplaceinthesun.com (APITS Ltd.) requests all advertisers supply correct details, it does not carry out checks on the information supplied and cannot be held responsible for any inaccuracies. Aplaceinthesun.com recommends seeking independent legal advice prior to any overseas property purchase.
*Based on an exchange rate of 0.8723 from Euro to GBP. This rate is updated daily and is an indicative market rate supplied by A Place in the Sun Currency. Actual trading rates vary.