Premium New development

3 Bed Apartment for sale

Neuilly-sur-Seine, Hauts-de-Seine, Ile-de-France, France

£2,083,333 *  [€2,390,000]

3 Bed Apartment for sale

Neuilly-sur-Seine, Hauts-de-Seine, Ile-de-France, France

£2,083,333 *  [€2,390,000]

Property Details


  • Bedrooms: 3
  • Bathrooms: 3

Features


  • Parking

Full Description


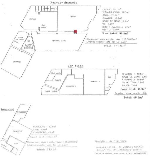
Ideally located in Neuilly, just a stone's throw from the American Hospital, this charming renovated 1890 house is set in an 80m² garden with trees.
It comprises a terrace giving access to a luminous veranda, leading to a large living room with fireplace, a dining room with open fitted kitchen, an independent bedroom with bathroom, and a guest toilet. Upstairs, a bedroom with en-suite shower room and toilet, and a master suite with en-suite shower room. The basement includes a 24 m² laundry room, a wine cellar and a cellar.
This property, in perfect condition and air-conditioned, benefits from absolute peace and quiet, with no onward views, and rare luminosity.
Two additional parking spaces are available.
Read more

Map may not show exact location

This property listing (ref: Aoi6h47wskr4ptek) is an advertisement supplied by French Gold Property and does not constitute property particulars. While aplaceinthesun.com (APITS Ltd.) requests all advertisers supply correct details, it does not carry out checks on the information supplied and cannot be held responsible for any inaccuracies. Aplaceinthesun.com recommends seeking independent legal advice prior to any overseas property purchase.
*Based on an exchange rate of 0.8717 from Euro to GBP. This rate is updated daily and is an indicative market rate supplied by A Place in the Sun Currency. Actual trading rates vary.