Premium New development

Land for sale

Agios Nikolaos, Lasithi, Crete, Greece

£209,534 *  [€240,000]

Land for sale

Agios Nikolaos, Lasithi, Crete, Greece

£209,534 *  [€240,000]

Property Details


  • Bedrooms: 0
  • Bathrooms: 0

Features


  • Plot size: 9060 m2
  • Build up to 267 m2
  • Road access
  • Sea view

Full Description


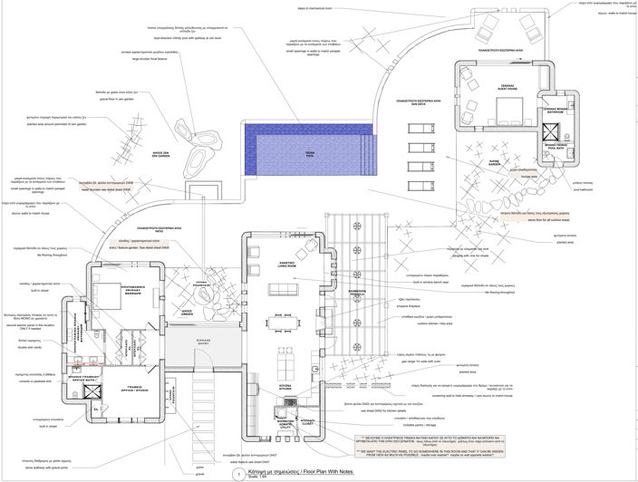
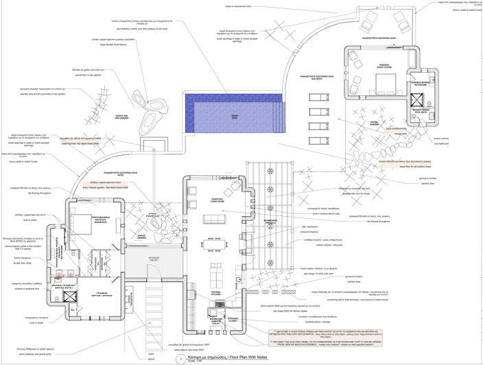
Large building land of 9060 sq. meters with sea and mountain views in the area of Mardati, only a few minutes drive to the modern tourist town of Agios Nikolaos.

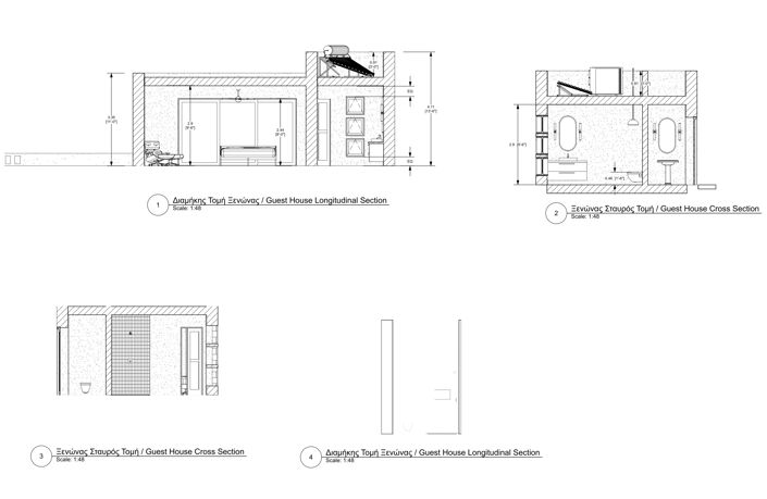
It already has a newly issued building license for a stylish, modern bungalow of 211.5 m2, plus a guest house of 55 m2, plus a swimming pool of 34.65 m2.
The license is valid until 22/07/2029, with the possibility to have it renewed for another 4 years at a small fee.

Water, power and phone lines with broadband internet are available on the spot and there is easy road access.

Mardati is a quiet middle and high class residential area south-west of the cosmopolitan tourist town of Agios Nikolaos.
The nearest supermarket (Lidl) is only 3.5 km (approx. 5 minutes) from the plot.
The town of Agios Nikolaos as well as several wonderful beaches are only about a 7-minute drive away.
About a 45-minute drive to Heraklion International Airport.

Agios Nikolaos is the capital of the county Lasithi and is located at the Mirabello Bay, north-east Crete, only 40 mins away from the international airport of Heraklion.
Geographically the town is well protected from strong winds allowing sea sports and swimming nearly all year round.
Although Agios Nikolaos has a population of less than 20,000 it has several banks, supermarkets, shops of every kind, doctors, a modern hospital of high standard, public swimming pool and tennis courts, yacht marina, harbour, cinema, theatre, gyms, a 9-hole golf course, schools ranging from nurseries to 6-level high school and generally all the amenities you would expect to find in a modern European town.
The microclimate is one of the best in Greece and the moderate temperatures rarely exceed 30c in summer or fall below 15c in wintertime. This wonderful dry climate together with the natural beauty of the area has attracted most of the high class hotels of Greece to operate here.Grand terrain constructible de 9091 m². Mètres avec vue sur la mer et la montagne dans le domaine de Mardati, à 5 minutes en voiture de la ville touristique moderne d'Agios Nikolaos.

Il est possible de construire une maison ou des maisons d'un total de 300 m2 plus sous-sol (s).
Cela vous laisse beaucoup d'espace pour les terrasses, vérandas, piscine, jardin et places de parking couvertes et ouvertes.

Eau, électricité et lignes téléphoniques avec Internet à haut débit sont sur la terre et il ya un accès routier facile.

Agios Nikolaos est la capitale du comté de Lassithi et est situé à la baie de Mirabello, au nord-est de la Crète, à seulement 45 minutes de l'aéroport international d'Héraklion.

Géographiquement, la ville est bien protégé des vents forts permettant sports nautiques et la baignade presque toute l'année.

Bien Agios Nikolaos a une population de moins de 20.000 il a plusieurs banques, supermarchés, magasins de tout genre, des médecins, un hôpital moderne de haute qualité, piscine publique et des courts de tennis, port de plaisance, le port, le cinéma, le théâtre, des gymnases, un 9-trous de golf, écoles allant de pépinières à 6 niveau secondaire et généralement toutes les commodités que vous attendez à trouver dans une ville européenne moderne.

Le microclimat est l'un des meilleurs en Grèce et les températures modérées dépassent rarement 30c en été ou à l'automne ci-dessous 15c en hiver. Ce climat sec merveilleux ensemble avec la beauté naturelle de la région a attiré la plupart des hôtels haut de gamme de la Grèce à opérer ici.
Read more

Map may not show exact location

This property listing (ref: 5D-PLMAR9) is an advertisement supplied by Buy and Sell Estate Agency and does not constitute property particulars. While aplaceinthesun.com (APITS Ltd.) requests all advertisers supply correct details, it does not carry out checks on the information supplied and cannot be held responsible for any inaccuracies. Aplaceinthesun.com recommends seeking independent legal advice prior to any overseas property purchase.
*Based on an exchange rate of 0.8731 from Euro to GBP. This rate is updated daily and is an indicative market rate supplied by A Place in the Sun Currency. Actual trading rates vary.