Premium New development
Back to results

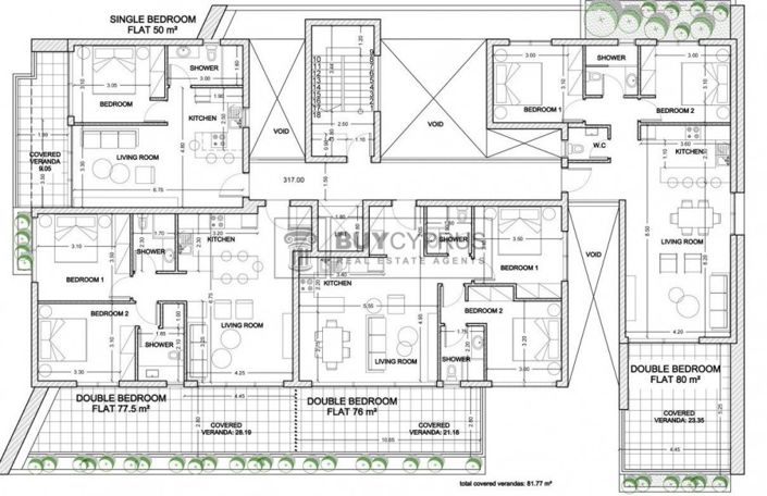
2 Bed Penthouse for sale

Tombs of the Kings, Paphos, Cyprus

£409,158 *  [€470,000]

2 Bed Penthouse for sale

Tombs of the Kings, Paphos, Cyprus

£409,158 *  [€470,000]

Property Details


  • Bedrooms: 2
  • Bathrooms: 2

Features


  • Concealed Air-Conditioning
  • En suite bathroom
  • En-Suite Shower Room
  • Family Bathroom
  • Fitted Wardrobes
  • Intercom
  • Lift/Elevator
  • Lobby
  • Master Bedroom
  • Open Kitchen
  • Optional Underfloor Heating
  • Shower
  • Unfurnished
  • Water pressure system
  • Balcony
  • Barbeque Area
  • Communal Gym
  • Communal swimming pool
  • Double Glazing
  • Landscaped Garden
  • Private Parking (covered)
  • Provisional for Security System
  • Storage room
  • Veranda
  • Airport 20 mins Drive
  • Amenities: Walking Distance
  • Beach: Walking distance
  • Golf: 10 Min Drive
  • International School 5 minutes drive
  • Local School Nearby
  • Sea views
  • Town: 5 min drive
  • Plus VAT
Read more

Full Description


BREATHTAKING 2-BEDROOM 2-BATHROOM PENTHOUSE IN TOMB OF THE KINGS

FEATURING SEA VIEWS & ACCESS TO COMMUNAL SWIMMING POOL/GYM/CO-WORKING SPACE

WALKING DISTANCE TO ESSENTIAL AMENITIES & MORE

600 METERS FROM THE BEACH

UNDER CONSTRUCTION

Rising above the vibrant and historic Tombs of the Kings area in Paphos, this exceptional 2-bedroom, 2-bathroom penthouse offers a rare opportunity to enjoy elevated coastal living in one of Cyprus’s most sought-after locations. Set within a boutique development of just 14 exclusive residences, this penthouse is the crown jewel—combining panoramic sea views, modern design, and a lifestyle-focused setting.

Positioned just 600 meters from the award-winning blue-flag beach, the penthouse enjoys a privileged location that seamlessly blends convenience and tranquility. Residents can walk to nearby supermarkets, restaurants, cafés, and essential amenities, while also being just a short drive from Paphos old town and the charming harbour. Whether for permanent living, a holiday escape, or a high-yield investment, this penthouse delivers on all fronts.

Elevated on the top floor, the penthouse commands sweeping views of the Mediterranean Sea and lush green surroundings. Its position at the end of a quiet plot ensures minimal road noise and maximum privacy, creating a peaceful retreat that’s still at the heart of everything. Floor-to-ceiling windows and generous outdoor spaces allow for an abundance of natural light and uninterrupted vistas, making every sunset a private spectacle.

More than just a residence, this penthouse is part of a thoughtfully designed lifestyle development. Residents can enjoy a communal outdoor swimming pool, a fully equipped gym in the basement, a refined lobby, and a modern co-working space that supports today’s flexible work-life balance. These shared amenities are designed to enhance well-being, productivity, and a sense of community.

Investors will also benefit from a comprehensive property management offering, with the developer providing short- and long-term rental services to ensure effortless ownership and steady returns.

Combining contemporary luxury, strategic location, and a full suite of lifestyle amenities, this penthouse is the ultimate expression of modern Mediterranean living.

Completion Due 2026

Tombs of the Kings area in Kato Paphos in just few minutes walk to the seafront, local beaches, Paphos Harbor and shopping mall, means that all amenities are within easy reach.

Kato Paphos is a firm favorite for all who live in Paphos. It’s a top holiday resort area with loads of stunning hotels and facilities for all to enjoy. Located in the western part of Cyprus, Kato is the part of Paphos city that lies just next to the sea and is a glorious place to walk at any time of the day. The promenade stretches along the sea front, offering you many opportunities to shop, or have something to eat in one of the many restaurants that offer local or international cuisine.

Sun bathers lie on the sandy beaches in close proximity to the excitement that is synonymous with Kato. At night it has lovely bars and nightlife but is also a great place for children to enjoy an ice cream during the day. Most take long leisurely walks and bask in the beauty of the sea and the cosmopolitan surroundings.

While it offers the best in modern amenities, it is also known for its historical sites. Kato was built on the site of an ancient city and port. At the end of the harbor, you can view the Paphos castle, that often hosts concerts and cultural events that please the whole family. The archaeological park is a must, where exquisite floor mosaics that date back to the roman period are noted as the best in the eastern Mediterranean.

You can pose for photos at the lighthouse or view the Tomb of the Kings carved out of solid rock and decorated with Doric pillars. It’s a short walk away from Kings Avenue mall and a central point to catch a bus to any other part of Paphos. Everything is near, when you stay in Kato, and you can reach all the best that Paphos has to offer within ten to twenty minutes. It’s a great place to own a home with modern upmarket high-level residences and luxury villas.

Buy Cyprus LTD a leading and esteemed fully accredited Estate Agent, proudly holding registration number 1014 with the Cyprus Real Estate Agents Association and license number 477/E. With nearly three decades of unwavering commitment in the Cyprus and UK real estate markets, Buy Cyprus stands as the epitome of trustworthiness, offering top-tier expert services.

Paphosproperties has seamlessly integrated with Buy Cyprus LTD, becoming an integral part of our number one leading agency. Together, we share in this legacy of excellence, with our unwavering focus on exceeding customer expectations. We ensure that both buyers and sellers receive unparalleled care and dedication, drawing upon our profound understanding of the Cyprus Real Estate Market to provide objective and impartial advice to our esteemed clientele. With utmost transparency, we deliver honest and precise property information, empowering you to make well-informed decisions with absolute confidence.

Read more

Map may not show exact location

This property listing (ref: BC15304) is an advertisement supplied by Buy Cyprus and does not constitute property particulars. While aplaceinthesun.com (APITS Ltd.) requests all advertisers supply correct details, it does not carry out checks on the information supplied and cannot be held responsible for any inaccuracies. Aplaceinthesun.com recommends seeking independent legal advice prior to any overseas property purchase.
*Based on an exchange rate of 0.8705 from Euro to GBP. This rate is updated daily and is an indicative market rate supplied by A Place in the Sun Currency. Actual trading rates vary.