Premium New development

4 Bed Property for sale

Croatia

£1,095,722 *  [€1,250,000]

4 Bed Property for sale

Croatia

£1,095,722 *  [€1,250,000]

Property Details


  • Bedrooms: 4
  • Bathrooms: 4

Full Description


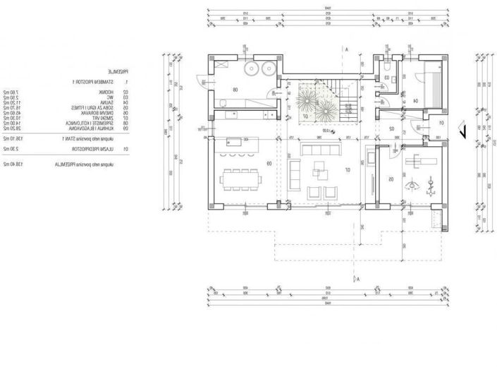
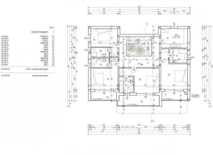
Exclusive villa with pool in a quiet location with 293 m2 of living space. It is carefully decorated and is all luxury. Villa extends over two floors. On the ground floor there is a living room, a dining room and a kitchen in the common area, a corridor, a winter garden and a toilet. Interior is decorated with special attention and stylistically perfectly coordinated. It blends with the outdoor space and makes the property perfect for rest and relaxation. Special mention should be made of the game room, fitness room and Finnish sauna for several people. There is also a storage room and a boiler room. Stairs lead to the first floor, where there are four beautiful bedrooms, each with a bathroom. Each room has its own loggia that provides some privacy for the individual, there is also a laundry room.On a beautifully landscaped garden in Mediterranean style, located on 1000 m2, there is a swimming pool 10 x 4 m with high-quality foil and an Ecosalt water treatment system, an outdoor grill for gourmet enjoyment, and parking for two cars. The yard has automatic Rainbird environmental irrigation. The property also has a water tank with a capacity of 58 m3.
During the construction of this property, top quality materials were used, both for the interior and exterior. The house is made of brick, the outer walls are 40 cm thick and the flat roof with 25-20 cm insulation. The floors are made of kerlit boards with dimensions of 300x100 cm manufactured by Cotto di Este. It has DVC video surveillance with 4 cameras, Ajax alarm system (control via mobile application), multi-room sound system / music - kitchen, living room, sauna and terrace by the pool, triple glazing on aluminum - PVC joinery (outside aluminum inside PVC). Palazzeti fireplace, and Hafro Geronim Finnish sauna for 3-4 people with chromotherapy, heater 3 KW.The villa is equipped with equipment from renowned world manufacturers. The carpentry is with three-layer glass, and it is equipped with high-quality security doors. The property is heated and cooled using a fan coiler, then a heat pump, and it also has underfloor heating. The entire villa with a garden is fenced and under video surveillance, and secured by an alarm system via a mobile application.
This luxury real estate is a real gem, and the location away from the city crowds provides peace and privacy. Ref: RE-U-12625Overall additional expenses borne by the Buyer of real estate in Croatia are around 7% of property cost in total, which includes: property transfer tax (3% of property value), agency/brokerage commission (3%+VAT on commission), advocate fee (cca 1%), notary fee, court registration fee and official certified translation expenses. Agency/brokerage agreement is signed prior to visiting properties.Property advantages: Swimming pool, Storage, Gym, Sauna, Floor heating, Garden, Modern
Read more

Map may not show exact location

This property listing (ref: RE-U-12625) is an advertisement supplied by ADRIONIKA CONSULTANCY and does not constitute property particulars. While aplaceinthesun.com (APITS Ltd.) requests all advertisers supply correct details, it does not carry out checks on the information supplied and cannot be held responsible for any inaccuracies. Aplaceinthesun.com recommends seeking independent legal advice prior to any overseas property purchase.
*Based on an exchange rate of 0.8766 from Euro to GBP. This rate is updated daily and is an indicative market rate supplied by A Place in the Sun Currency. Actual trading rates vary.