Premium New development

5 Bed Property for sale

Reunion, Osceola County, Florida, United States

£1,790,119 *  [$2,395,000]

5 Bed Property for sale

Reunion, Osceola County, Florida, United States

£1,790,119 *  [$2,395,000]

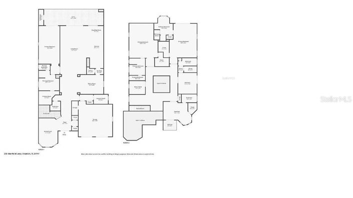
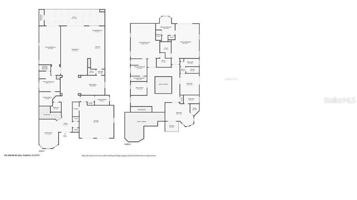
Property Details


  • Bedrooms: 5
  • Bathrooms: 6
  • Plot size: 0.21 m2
  • Habitable space: 5563 m2

Features


  • SPA
  • Open Parking
  • Eating Space In Kitchen
  • Kitchen/Family Room Combo
  • Solid Wood Cabinets
  • Stone Counters
  • Walk-In Closet(s)
  • Window Treatments
  • Convection Oven
  • Cooktop
  • Dishwasher
  • Dryer
  • Electric Water Heater
  • Microwave
  • Refrigerator
  • Washer
  • Has Cooling System
  • Home Owners Association
  • Garage Attached
  • Has Garage
  • Has Heating System
  • Thermostat
  • Vaulted Ceiling(s)
  • Range
  • Has Fireplace
  • Crown Molding
  • Open Floorplan
  • Irrigation System
  • Rain Gutters
  • Sliding Doors
  • Sidewalk
  • Tray Ceiling(s)
  • Built-In Oven
  • Exhaust Fan
  • Water Filtration System
  • Pest Guard System
  • Range Hood
  • Ice Maker
  • Has Pool
  • Smart Home
  • Wine Refrigerator
  • Water Softener
  • Outdoor Kitchen
  • Lighting
  • Balcony
  • Ceiling Fan(s)
  • Central Vacuum
  • Has a View
  • High Ceilings
Read more

Full Description


Discover a stunning transitional home with an "Active Reunion Resort Membership" and “Now Fully Furnished Turnkey”, perfectly situated on the 14th hole of the esteemed Jack Nicklaus golf course. Spanning over 7,000 square feet, this property is nestled in the highly sought-after Reunion Resort community. Built by McNally Construction, a renowned luxury home builder, it underwent a luxurious renovation in 2023, featuring exquisite upgrades, designer details, and smart home technology. This private retreat is located on a high-elevation lot, away from the cart paths. It presents a unique opportunity for buyers seeking one of the most enchanting homes in the executive section of Reunion, offering both privacy and charm. As you enter through the grand double iron doors, you'll be greeted by a stunning two-story vaulted entrance adorned with intricate custom woodwork, a hallmark of the finest homes. Stroll through the elegant gallery and admire the three-story tower, complete with a magnificent chandelier and views of the golf course. The chef's dream kitchen boasts high-end gourmet appliances, beautiful granite countertops, premium cabinets with crown molding, and soft-close features. Transition seamlessly to the lanai, where you'll find an entertainer's dream space overlooking the golf course, featuring a large, heated infinity pool and spa, a chef’s outdoor kitchen with a DCS Built-In Natural Gas Grill, an outdoor gas fireplace, and an expansive custom-paved pool deck. Enjoy a game of billiards in the impressive two-story Billiards Room, highlighted by 20 ft custom window treatments and tray ceilings. After a day on the course, retreat to the luxurious master suite, which offers views of the infinity pool and lush landscaping that transforms into a magical setting at night. Unwind in your Air Spa Tub in the beautifully designed master bathroom. Guests will be treated to two additional luxury master bedrooms on the second floor, each featuring a garden tub, shower, double sinks, walk-in closets, and a full-length balcony with stunning golf course views. This smart home includes voice and app-controlled pool automation, a whole-house lighting system, motorized blinds, Wi-Fi-enabled garage door openers, Trane XV variable speed AC systems with Halo LED air purifiers, Yale automated deadbolt locks, and a water leak protection system with a remote water main shut-off. Additional conveniences include three chandelier lifts and a whole-house commercial water filtration system with instant hot water, all while maximizing energy efficiency with aluminum Thermopane windows, and a new High Efficiency Hybrid Water Heater. Furnishings include luxurious branded furniture such as Natuzzi, 4k LG OLED TV’s, Bose sound systems, custom bedding ensembles with coordinated designer draperies, window treatments, and wall art. The world-renowned Reunion Resort offers three championship golf courses, private membership amenities, an exceptional waterpark and lazy river, tennis and golf centers, a spa, multiple fine dining options, and is conveniently located less than 15 minutes from Walt Disney World.
Read more

Map may not show exact location

This property listing (ref: TB8418269) is an advertisement supplied by Signature Collection Realty Ltd and does not constitute property particulars. While aplaceinthesun.com (APITS Ltd.) requests all advertisers supply correct details, it does not carry out checks on the information supplied and cannot be held responsible for any inaccuracies. Aplaceinthesun.com recommends seeking independent legal advice prior to any overseas property purchase.
*Based on an exchange rate of 0.8757 from Euro to GBP. This rate is updated daily and is an indicative market rate supplied by A Place in the Sun Currency. Actual trading rates vary.