Premium New development

Plot for sale

Vila do Bispo, Vila do Bispo, Algarve, Portugal

£370,730 *  [€420,000]

Plot for sale

Vila do Bispo, Vila do Bispo, Algarve, Portugal

£370,730 *  [€420,000]

Property Details


  • Bedrooms: 0
  • Bathrooms: 0
  • Plot size: 1370 m2

Full Description


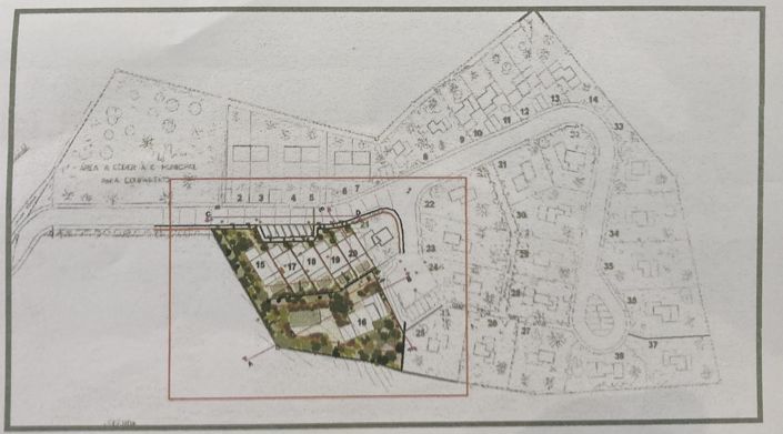
Plot 16, with an area of 1.370 m2 in an urbanization set on the elevated position with views of the countryside, located between Parque da Floresta Golf Resort and the quaint fishing village of Salema.

Planning would allow to build a small hotel or guesthouse spread on two levels up to 575m2 in total, plus basement.

This an opportunity to purchase a plot with permission to build a commercial building for a small business.
Read more

Map may not show exact location

This property listing (ref: BPA4212-16) is an advertisement supplied by B&P Property and does not constitute property particulars. While aplaceinthesun.com (APITS Ltd.) requests all advertisers supply correct details, it does not carry out checks on the information supplied and cannot be held responsible for any inaccuracies. Aplaceinthesun.com recommends seeking independent legal advice prior to any overseas property purchase.
*Based on an exchange rate of 0.8827 from Euro to GBP. This rate is updated daily and is an indicative market rate supplied by A Place in the Sun Currency. Actual trading rates vary.