Premium New development

5 Bed Property for sale

Benahavis, Malaga, Andalucia, Spain

£1,226,134 *  [€1,400,000]

5 Bed Property for sale

Benahavis, Malaga, Andalucia, Spain

£1,226,134 *  [€1,400,000]

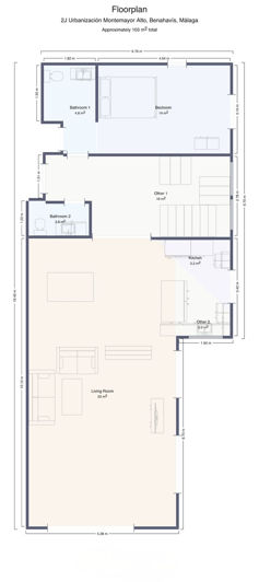
Property Details


  • Bedrooms: 5
  • Bathrooms: 0
  • Plot size: 1852 m2
  • Habitable space: 551 m2

Full Description


Luxurious five-Bedroom Villa in Monte Mayor - a stunning five-bedroom detached villa situated in the exclusive gated community of Monte Mayor. Nestled in a sheltered valley in the hills of Benahavís, the spectacular Monte Mayor estate is renowned for its rural beauty and gastronomic delights, offering a luxurious lifestyle in an unparalleled setting. The villa is entered through a paved driveway leading to a double garage and an impressive entrance hall. The villa is distributed over three levels, sitting on a plot of 1852m², and offers unparalleled sea and mountain views. On the first level, there are two bedrooms, including a guest bedroom with an en-suite and the master suite, which features a full en-suite bathroom and a private terrace. As you descend to the second level, you pass through a floor-to-ceiling window showcasing panoramic views. The second level boasts an elegant open-plan lounge/dining room and a fully fitted luxury kitchen, with direct access to a private pool and wrap-around terrace. This level also includes a third bedroom with an en-suite bathroom. The third level offers an additional spacious bedroom, storage rooms, a utility room, a family bathroom, and a second lounge area. The villa's design seamlessly blends indoor and outdoor living, enhancing the luxurious lifestyle it offers. The villa has two additional spaces within the villa, totalling over 100m², which can very easily be converted into a gymnasium, cinema, games room, bedrooms, additional lounge, etc,

Monte Mayor commands breathtaking views of the Mediterranean, Gibraltar, and the African coastline. Set amidst a dramatic mountain range and lush vegetation, it provides a magnificent natural backdrop while being only a 15-minute drive from the coast and the renowned resorts of Marbella and Puerto Banús. The estate maintains its natural beauty, allowing residents to enjoy the luxury of space and privacy. Monte Mayor offers an exclusive rural address with top-tier privacy, security, and the most pristine surroundings. The community also offers full 24 hour onsite security, a fabulous café/restaurant, and is just 2 minutes drive from the incredible Marbella Club Golf Resort, where you can find a world class 18 hole golf course and Equestrian centre, and a simply stunning restaurant.
Read more

Map may not show exact location

This property listing (ref: R5103091) is an advertisement supplied by Fine and Country Costa del Sol and does not constitute property particulars. While aplaceinthesun.com (APITS Ltd.) requests all advertisers supply correct details, it does not carry out checks on the information supplied and cannot be held responsible for any inaccuracies. Aplaceinthesun.com recommends seeking independent legal advice prior to any overseas property purchase.
*Based on an exchange rate of 0.8758 from Euro to GBP. This rate is updated daily and is an indicative market rate supplied by A Place in the Sun Currency. Actual trading rates vary.