Premium New development

3 Bed Villa for sale

Ayia Napa, Famagusta, Cyprus

£2,875,817 *  [€3,300,000]

3 Bed Villa for sale

Ayia Napa, Famagusta, Cyprus

£2,875,817 *  [€3,300,000]

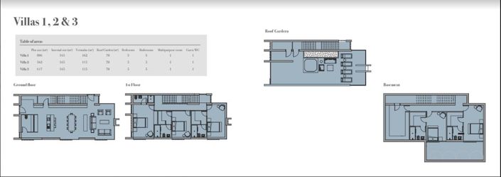
Property Details


  • Bedrooms: 3
  • Bathrooms: 3
  • Plot size: 1055 m2
  • Habitable space: 345 m2

Full Description


Luxury Seafront 3-Bedroom Villa – Ayia Napa

This elegant villa is part of an off-plan seafront development on Ayia Napa’s eastern coast, designed to combine contemporary architecture with refined elegance and practical comfort. Positioned directly on the shoreline, it offers privacy, panoramic sea views, and immediate access to vibrant coastal life.

Villa Features

Off plan
Estimated delivery: 2Q 2027
The price is subject to VAT

3 bedrooms
3 bathrooms
Guest WC
Covered area: 345 m²
Roof garden: 70 m²
Plot size: 1055 m²
Covered parking included

The villa provides 345 m² of covered living space, arranged across expansive open-plan areas and three spacious bedrooms. A private 70 m² roof garden crowns the home, offering unobstructed sea views and a tranquil outdoor retreat. The generous 1055 m² plot ensures ample outdoor space, while three bathrooms, a guest WC, and covered parking add convenience and privacy.

Premium finishes, secure gated access, and a clean architectural layout elevate the living experience. Optional customization of finishes may be available depending on buyer preferences.

Communal facilities include landscaped surroundings and secure gated entry. Communal fees will be confirmed upon completion.

This residence is ideal as a permanent home or a high-end holiday escape, offering both exclusivity and direct beach access.

Location – Ayia Napa, Eastern Coast Set just steps from the beach, the villa is within walking distance of shops and restaurants, with schools located 5 km away and the international airport only 35 km away. This prime location offers both tranquility and connectivity, making it a perfect choice for families, investors, or lifestyle seekers.
Read more

Map may not show exact location

This property listing (ref: CAT-OSFV1) is an advertisement supplied by Sunshine Luxury Villas and does not constitute property particulars. While aplaceinthesun.com (APITS Ltd.) requests all advertisers supply correct details, it does not carry out checks on the information supplied and cannot be held responsible for any inaccuracies. Aplaceinthesun.com recommends seeking independent legal advice prior to any overseas property purchase.
*Based on an exchange rate of 0.8715 from Euro to GBP. This rate is updated daily and is an indicative market rate supplied by A Place in the Sun Currency. Actual trading rates vary.