Premium New development

4 Bed Villa for sale

Pinoso, Alicante, Valencia, Spain

£314,559 *  [€358,000]

4 Bed Villa for sale

Pinoso, Alicante, Valencia, Spain

£314,559 *  [€358,000]

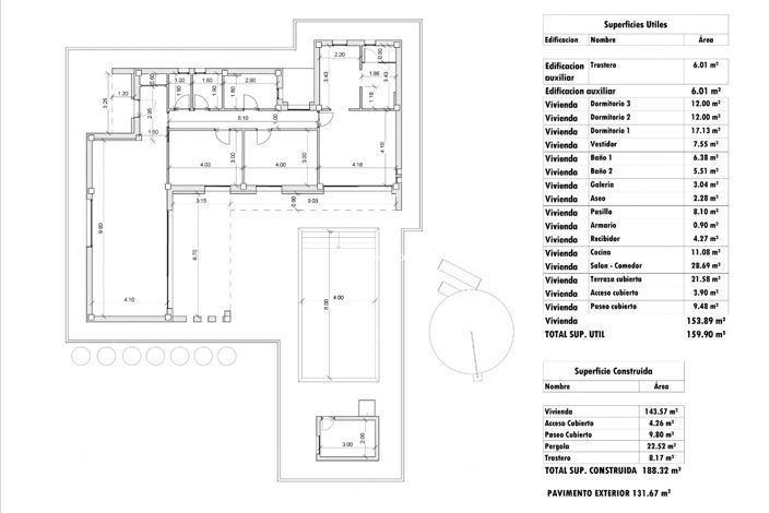
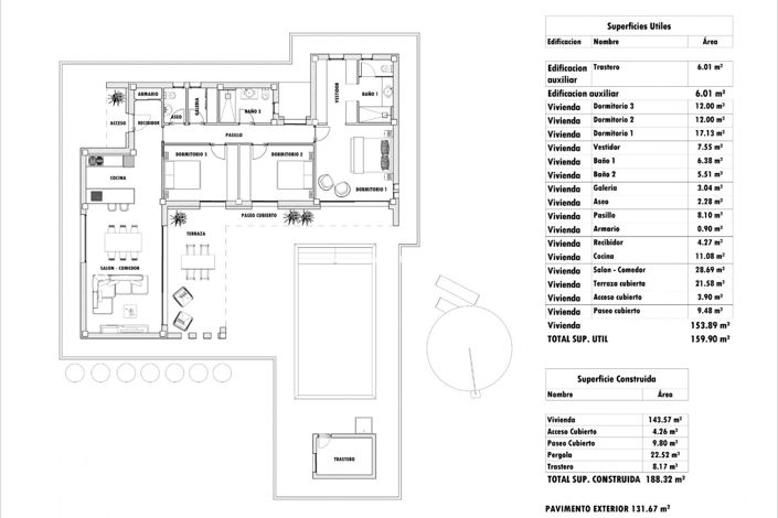
Property Details


  • Bedrooms: 4
  • Bathrooms: 3
  • Habitable space: 223 m2

Full Description


Stunning 4-Bedroom, 3-Bathroom Villa with Private Pool in Pinoso  (model stone plus-4)

Welcome to this modern, luxury villa located in the tranquil town of Pinoso, offering a unique opportunity to experience sophisticated living in the heart of the Spanish countryside. With 4 spacious bedrooms, 3 beautifully designed bathrooms, and a private swimming pool, this villa is the epitome of comfort, style, and sustainability.  Land not included, starts from 50,000 euros.

Contemporary Design & Top-Quality Construction

Built with the latest standards in construction, the villa features:

Reinforced concrete foundation and structure, ensuring long-lasting durability.

Thermo-clay brick exterior walls with high thermal insulation, finished with elegant natural stone and modern white monocouche render for a sleek, stylish look.

Inverted flat roof with top-grade thermal insulation and waterproofing.

Luxury Interior Finishes

Step into a spacious living area that perfectly balances modern aesthetics with functionality:

Interior carpentry includes high-quality lacquered white passage doors, sleek steel-colored handles, and built-in wardrobes that reach the ceiling, providing ample storage space.

Premium porcelain stoneware flooring options for a stylish, durable finish.

Sophisticated bathrooms with white vitrified porcelain sanitary fixtures, elegant chrome faucets, and luxurious shower areas with fixed glass screens.

Fully Equipped Kitchen

The kitchen is a gourmet's dream, equipped with everything needed to create delicious meals:

High-end kitchen units that reach up to the ceiling, with pre-designated spaces for essential appliances such as a refrigerator, dishwasher, and oven.

Silestone or similar countertop and an island with a pre-installed space for an extractor hood.

A stainless steel sink with a chrome single-lever faucet, making cooking and cleaning a breeze.

Outdoor Living at Its Best

Enjoy the beautiful Mediterranean climate in your private outdoor area:

Private swimming pool (8 x 4 meters) finished in stunning mosaic tiles, with a white coping and LED lights that set the perfect ambiance.

The poolside area is finished with printed concrete and includes an outdoor shower for added convenience.

Optional artificial grass area (approximately 15 m²), creating a low-maintenance, beautiful space for relaxation and entertainment.

Energy-Efficient & Sustainable Features

This villa has been designed with sustainability in mind:

Pre-installation for photovoltaic solar panels for energy self-consumption on the solarium.

Pre-installation for air conditioning, with ducts already in place for easy installation in the living room and bedrooms.

Advanced vertical ventilation system to improve energy efficiency and maintain excellent indoor air quality.

Hot water system via a 100-liter electric heater.

Additional Highlights:

Video intercom with image display and pre-installation for exterior lighting.

Electric vehicle gate for easy access to the property.

Spacious storage room for the pool pump and additional storage needs.

Wastewater management with a 3,000-liter septic tank.

Secure fencing around the entire plot with galvanized steel chain-link mesh and an automatic sliding gate for added privacy and security.

A Home Tailored for Comfort & Luxury

This villa not only provides all the modern comforts you could wish for but also ensures sustainability, energy efficiency, and an outstanding living experience in one of the most sought-after regions in Spain.

Contact us today for more information or to schedule a visit and see for yourself what this incredible villa in Pinoso has to offer!

Read more

Map may not show exact location

This property listing (ref: IT-0517) is an advertisement supplied by El Toro Urbanismo Costa Blanca SL and does not constitute property particulars. While aplaceinthesun.com (APITS Ltd.) requests all advertisers supply correct details, it does not carry out checks on the information supplied and cannot be held responsible for any inaccuracies. Aplaceinthesun.com recommends seeking independent legal advice prior to any overseas property purchase.
*Based on an exchange rate of 0.8787 from Euro to GBP. This rate is updated daily and is an indicative market rate supplied by A Place in the Sun Currency. Actual trading rates vary.