Premium New development

3 Bed Duplex for sale

Vera Playa, Almeria, Andalucia, Spain

£201,508 *  [€229,900]

3 Bed Duplex for sale

Vera Playa, Almeria, Andalucia, Spain

£201,508 *  [€229,900]

Property Details


  • Bedrooms: 3
  • Bathrooms: 2
  • Habitable space: 114 m2

Features


  • Access to 2 Communal Swimming Pools
  • Air Conditioning
  • Private Solarium
  • Allocated Parking
  • Walking Distance to Beach
  • Private Terraces
  • Fiber Optic Internet
  • Walking Distance to Amenities
Read more

Full Description


Located in the sought-after Bahía Fenicia urbanization, the property is just a short walk from the sandy beaches of Vera Playa, as well as several bars, restaurants, shops, and supermarkets. It’s also conveniently close to local bus stops, providing easy access to the neighboring towns of Garrucha, Mojácar, and Vera.

The entrance to the property is on the first floor of the block. Upon entering, you are welcomed into a bright entrance hall, with the kitchen immediately to your left. The kitchen is generously sized and includes all white goods and a separate utility room. It also features a serving hatch that opens into the living/dining area. Double doors next to the kitchen lead into the spacious, light-filled living/dining room—an ideal space for comfortable, permanent living. Large double patio doors at the end of the living room allow in plenty of natural light and open onto a fantastic terrace with views over the communal pool and gardens.

Back in the entrance hall and to the right, you’ll find two of the bedrooms. The first is the third bedroom, currently arranged with twin beds, though it can easily accommodate a double bed. This bedroom includes fitted wardrobes and access to a private south-facing terrace. Opposite is the second bedroom, which features fitted wardrobes, a private en-suite bathroom, and access to the same terrace as the living room. This bedroom is also currently set up with twin beds but can accommodate a double if desired.

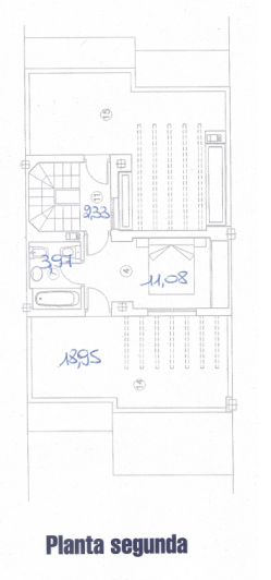
Heading upstairs, you’ll reach a landing area that leads to another generous terrace on the left. This south-facing terrace enjoys sunshine for most of the day while also offering areas of shade—ideal for outdoor relaxation. Opposite the terrace is the spacious master bedroom, complete with fitted wardrobes, a private en-suite bathroom, and access to yet another private terrace with views over the communal gardens and pool. This terrace is a truly special feature, providing a peaceful and intimate retreat. A retractable shade awning is also installed for added comfort during the warmer months.

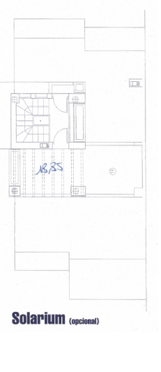
Continue up another flight of stairs and you’ll arrive at the private rooftop solarium, which boasts spectacular 360º views.

The Bahía Fenicia urbanization is beautifully maintained, with immaculate gardens and two communal pools—each with a dedicated children’s pool. Every property also benefits from an allocated off-street, shaded parking space.

Additional features of the property include air conditioning throughout, electric radiators, fly screens on all windows and doors, and the option to purchase the home furnished, subject to negotiation.

The Vera Playa area boasts unspoilt Blue Flag beaches and enjoys over 320 days of sunshine a year. The town of Vera, just a short drive away, is the main commercial hub and offers all necessary amenities, including shops, a medical centre, pharmacy, and an Iceland supermarket for British products.

Nearby Garrucha is renowned for its speciality seafood restaurants, and just beyond lies Mojácar, with its beaches, variety of restaurants, and historic hilltop ”pueblo blanco.” The area is also perfect for golfers, with four courses within a 15-minute radius, as well as family-friendly activities such as a water park and a Go-Kart track.
Read more

Map may not show exact location

This property listing (ref: VP-T3) is an advertisement supplied by Medimar Homes and does not constitute property particulars. While aplaceinthesun.com (APITS Ltd.) requests all advertisers supply correct details, it does not carry out checks on the information supplied and cannot be held responsible for any inaccuracies. Aplaceinthesun.com recommends seeking independent legal advice prior to any overseas property purchase.
*Based on an exchange rate of 0.8765 from Euro to GBP. This rate is updated daily and is an indicative market rate supplied by A Place in the Sun Currency. Actual trading rates vary.