Premium New development

4 Bed Villa for sale

Alhaurín el Grande, Malaga, Andalucia, Spain

£650,703 *  [€750,000]

4 Bed Villa for sale

Alhaurín el Grande, Malaga, Andalucia, Spain

£650,703 *  [€750,000]

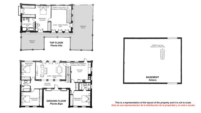
Property Details


  • Bedrooms: 4
  • Bathrooms: 3
  • Emissions: D
  • Consumption: D
  • Plot size: 977 m2
  • Habitable space: 537 m2

Features


  • Countryside location
  • Garden views
  • Mountain views
  • Countryside views
  • Outdoor swimming pool
  • Private swimming pool
  • Air conditioning
  • Fireplace
  • Heating
  • Fibre optic internet
  • Storage space
Read more

Full Description


Perfectly situated in one of the most sought-after neighbourhoods of Alhaurín El Grande, this stunning three-story family home offers a perfect blend of elegance, comfort, and convenience.

Ideally located within walking distance of the vibrant town centre and just a 30-minute drive from Málaga and its airport, this property is a haven for those seeking both tranquillity and accessibility.

Built in 2008 and meticulously maintained, the house features four spacious double bedrooms, two versatile living rooms a dining area, and three well-appointed bathrooms.

Every detail has been thoughtfully designed to create a warm and welcoming atmosphere, with individual air-conditioning and heating throughout to ensure year-round comfort.

In addition to the 241m² living space, there is a 187m² undeveloped space on the ground floor, which could be adapted to any number of uses and can be connected to the main living area via an internal staircase.

Set on a generous 977m² plot, the property boasts beautiful easily maintained gardens, multiple terraces, and a sparkling 10x5m pool perfect for relaxing or entertaining. The southeast orientation bathes the home in natural light, enhancing the airy, open feel of the interiors. An expansive driveway provides ample parking, while built-in wardrobes and dedicated storage spaces add to the home’s practicality.

Solar panels provide energy efficient hot water and an automated irrigation system effortlessly maintaining the lush, planted areas. Modern conveniences abound, including 300Mb fibre optic broadband, making it an ideal home for both work and leisure.

This is more than just a house; it’s a lifestyle. From the quiet charm of the neighbourhood to the thoughtful amenities and easy access to nearby attractions, this home truly has it all. Don’t miss the chance to make it your own. Contact us today to arrange a viewing and experience the exceptional living this property has to offer.

The listing agent, on behalf of the vendor, provides this information as guidance only and is not contractual. While efforts have been made to ensure accuracy, buyers should verify all details through their own inspections and inquiries. The data may be subject to errors, price changes, availability, or withdrawal without notice.
Read more

Map may not show exact location

This property listing (ref: V4921714) is an advertisement supplied by Ideal Country Property and does not constitute property particulars. While aplaceinthesun.com (APITS Ltd.) requests all advertisers supply correct details, it does not carry out checks on the information supplied and cannot be held responsible for any inaccuracies. Aplaceinthesun.com recommends seeking independent legal advice prior to any overseas property purchase.
*Based on an exchange rate of 0.8676 from Euro to GBP. This rate is updated daily and is an indicative market rate supplied by A Place in the Sun Currency. Actual trading rates vary.