Premium New development
Back to results

Land for sale

Santa Bárbara de Nexe, Algarve, Portugal

£343,867 *  [€395,000]

Land for sale

Santa Bárbara de Nexe, Algarve, Portugal

£343,867 *  [€395,000]

Property Details


  • Bedrooms: 0
  • Bathrooms: 0
  • Plot size: 1347 m2
  • Habitable space: 230 m2

Features


  • Energy Certificate: free

Full Description


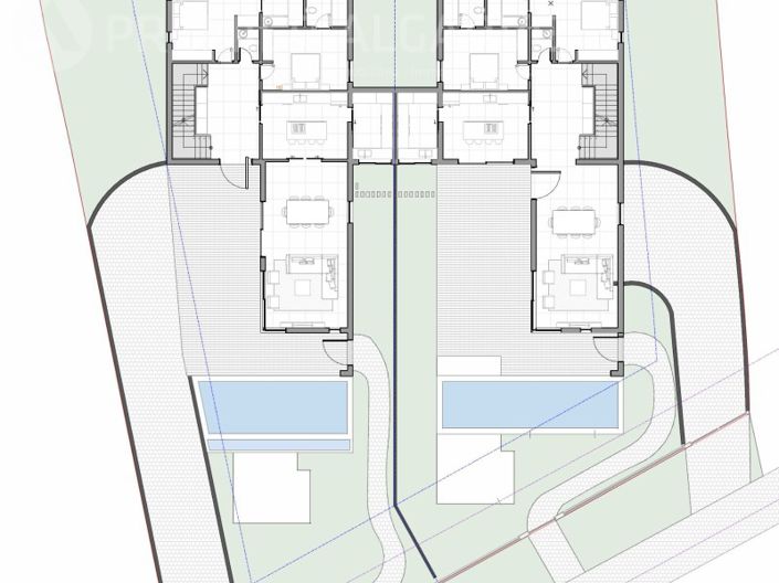
Plot of land with 1,347 sqm, located in Sta. Bárbara, offering sea views and excellent proximity to commercial areas and services.

The architectural project has already been submitted and approved for the construction of two semi-detached contemporary-style villas, each with 230 sqm of living area plus basement.

Each villa includes:

4 en-suite bedrooms;
1 guest bathroom;
Modern and functional architecture.

There is also the possibility of building a single detached villa with 460 sqm plus basement.

PIP approved.

For further information or to arrange a site visit, please do not hesitate to contact us.

The information provided does not exempt consultation of the official documentation with the competent authorities. - REF: T988
Read more

Map may not show exact location

This property listing (ref: T988) is an advertisement supplied by Premier Villas and does not constitute property particulars. While aplaceinthesun.com (APITS Ltd.) requests all advertisers supply correct details, it does not carry out checks on the information supplied and cannot be held responsible for any inaccuracies. Aplaceinthesun.com recommends seeking independent legal advice prior to any overseas property purchase.
*Based on an exchange rate of 0.8705 from Euro to GBP. This rate is updated daily and is an indicative market rate supplied by A Place in the Sun Currency. Actual trading rates vary.