Premium New development
Back to results

2 Bed Apartment for sale

Playa San Juan, Tenerife, Canary Islands, Spain

£313,398 *  [€360,000]

2 Bed Apartment for sale

Playa San Juan, Tenerife, Canary Islands, Spain

£313,398 *  [€360,000]

Property Details


  • Bedrooms: 2
  • Bathrooms: 2

Features


  • Garage
  • Storage room
  • Elevator

Full Description


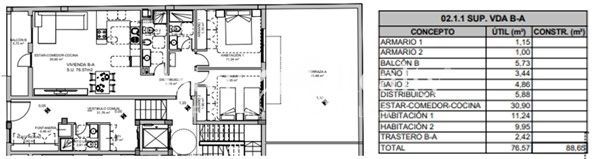
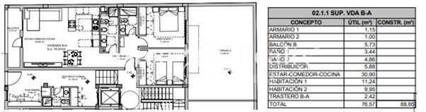
Vivienda Bajo A - 2 bedroom flat located on the ground floor of a new building. The living area is 76 m2. Both bedrooms have fitted wardrobes and windows to the rear of the building, which has a large terrace of 41 m2. There is an open plan kitchen, dining room and living room. A complete bathroom concludes the composition of this flat.Situated in the popular resort of Playa de San Juan, this new construction is located in the quieter part of the town, but within walking distance to the centre with its numerous bars and restaurants. There are 8 flats in total and most flats will come with a garage space and a storage room. There is a lift in the building.Asten reference: 8156.
Read more

Map may not show exact location

This property listing (ref: 941313) is an advertisement supplied by ASTEN REALTY and does not constitute property particulars. While aplaceinthesun.com (APITS Ltd.) requests all advertisers supply correct details, it does not carry out checks on the information supplied and cannot be held responsible for any inaccuracies. Aplaceinthesun.com recommends seeking independent legal advice prior to any overseas property purchase.
*Based on an exchange rate of 0.8705 from Euro to GBP. This rate is updated daily and is an indicative market rate supplied by A Place in the Sun Currency. Actual trading rates vary.