Premium New development

Maison de campagne à vendre à Lucignano

Lucignano, Arezzo, Toscane, Italie

€540 000  [£474 392]

Maison de campagne à vendre à Lucignano

Lucignano, Arezzo, Toscane, Italie

€540 000  [£474 392]

Détails du bien immobilier


  • Chambres: 0
  • Salles de bain: 0
  • Surface du terrain: 100 m2
  • Surface habitable: 345 m2

Description complète


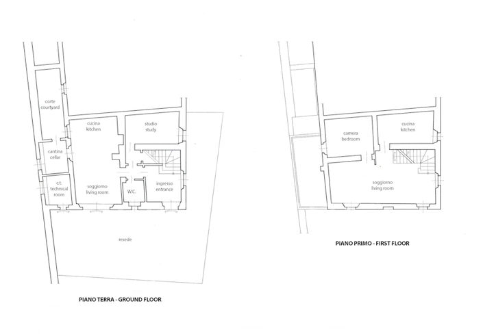
Villa Adele is arranged on three levels for a total of 270 sqm. On the ground floor we have an entrance hall and an apartment with living room/kitchen, bedroom and bathroom; on the first floor a living room with fireplace, a kitchen and a bedroom/study with access to a wonderful panoramic terrace of 15 sqm; on the second floor the sleeping area consisting of three bedrooms, a bathroom and a hallway from which, via an iron staircase, you enter the roof terrace and the attic rooms. Wherever you look, from the windows or terraces, you can enjoy a view of the medieval churches and towers as well as the wonderful countryside that surrounds the village. A garden of about 100 square meters which develops on two sides of the building constitutes a great added value for a property located within the historic walls. Although the property is habitable, it needs restoration.

STATE OF REPAIR
Typical finishes of the 1960's-1970's.

UTILITIES
All services and utilities are present. The heating system is powered by two natural gas boilers.

USE AND POTENTIAL USES
Villa Adele, given its position within the walls, the large spaces, the delightful garden, is the ideal solution for anyone who wants to live in a village but with the convenience of an independent and perfectly accessible residence. Excellent solution also to make it a hospitality business.

LOCATION
Located within the village of Lucignano, accessible by car and with the possibility of obtaining convenient parking within the exclusive courtyard. All services are within walking distance. The church of San Francesco, that of San Michele and the civic museum are located a few tens of meters away.

LAND REGISTRY DETAILS
The Great Estate group carries out a technical due diligence on each property acquired through the seller's technician, which allows us to know in detail the urban and cadastral status of the property. This due diligence may be requested by the client at the time of a real interest in the property.

OWNERSHIP DETAILS AND EVENTUAL CONTRACTUAL OBLIGATIONS
No restrictions.
Plus

La carte peut ne pas indiquer l'emplacement exact

Cette annonce immobilière (réf: 7415) est fournie par Great Estate Immobiliare Srl et ne constitue pas nécessairement une description précise d’un bien particulier. Bien que aplaceinthesun.com (APITS Ltd.) demande à tous les annonceurs de fournir des informations correctes, il ne vérifie pas les informations fournies et ne peut être tenu responsable pour quelque erreur que ce soit. Aplaceinthesun.com recommande de solliciter un avis juridique indépendant avant tout achat de bien immobilier à l'étranger.