Premium New development

Terre de 3 chambres à vendre à Faro City

Faro City, Algarve, Portugal

€240 000  [£207 900]

Terre de 3 chambres à vendre à Faro City

Faro City, Algarve, Portugal

€240 000  [£207 900]

Détails du bien immobilier


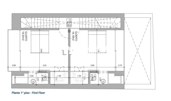
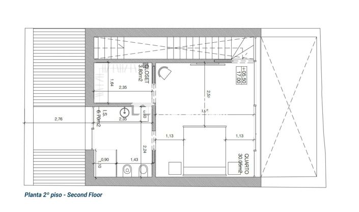
  • Chambres: 3
  • Salles de bain: 4
  • Surface du terrain: 58 m2
  • Surface habitable: 143 m2

Description complète


Découvrez ce terrain unique situé au cur de la ville dynamique de Faro!

Dune superficie totale de 58 m², ce terrain avec possibilité de construction offre un large éventail de possibilités pour ceux qui souhaitent bâtir une maison en plein centre-ville.

Le projet précédemment approuvé aujourdhui expiré prévoyait 3 chambres en suite, 4 salles de bains et une surface brute de construction de 158 m², répartie sur le rez-de-chaussée, le premier et le deuxième étage.

Il est également possible daménager un spacieux patio dans le prolongement de la cuisine, idéal pour créer un jardin privé, ainsi que des espaces intérieurs généreux, la suite parentale dépassant 30 m².

La ville de Faro propose une large offre de restaurants, écoles, supermarchés et espaces verts, ce qui en fait un lieu de vie idéal. Avec un accès facile aux transports publics et aux services essentiels tels que hôpitaux et pharmacies, cette propriété offre une combinaison unique de confort, de beauté naturelle et de richesse culturelle.

Ne manquez pas lopportunité de faire partie de cette communauté dynamique et accueillante. Contactez-nous dès aujourdhui pour organiser une visite et découvrir tout le potentiel de ce terrain!

AlgarveProperty.com - AMI: 2196 - T.: 00351 289310310
Plus

La carte peut ne pas indiquer l'emplacement exact

Cette annonce immobilière (réf: TC268848J) est fournie par AlgarveProperty.com et ne constitue pas nécessairement une description précise d’un bien particulier. Bien que aplaceinthesun.com (APITS Ltd.) demande à tous les annonceurs de fournir des informations correctes, il ne vérifie pas les informations fournies et ne peut être tenu responsable pour quelque erreur que ce soit. Aplaceinthesun.com recommande de solliciter un avis juridique indépendant avant tout achat de bien immobilier à l'étranger.