Premium New development
Retour aux Résultats

Maison de 2 chambres à vendre à Faro City

Faro City, Algarve, Portugal

€230 000  [£200 226]

Maison de 2 chambres à vendre à Faro City

Faro City, Algarve, Portugal

€230 000  [£200 226]

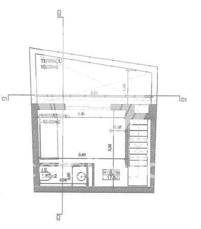
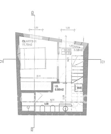
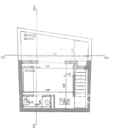
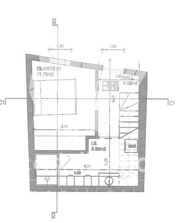
Détails du bien immobilier


  • Chambres: 2
  • Salles de bain: 2

Caractéristiques


  • Terrasse

Description complète


Ruine à reconstruire avec projet approuvé dans le centre de Faro.

Les villas de ce type dans le centre-ville et le centre-ville sont un type de maison très recherché et c’est donc une excellente opportunité.

Le centre-ville offre souvent un accès pratique aux services, aux transports en commun, au commerce et à d’autres commodités, ce qui peut augmenter la valeur de la propriété.

Excellente opportunité pour ceux qui recherchent un bon investissement ou une maison pour vivre dans le centre de la capitale de l’Algarve.

Contactez-nous et apprenez à connaître.
 Faro est une ville accueillante et tranquille qui dispose d’un port attrayant, de parcs et de places bien entretenus et d’une vieille partie de Vila-Adentro pleine de sentiers piétonniers et de cafés avec d’agréables terrasses. Dans cette ville, la population étudiante garantit une vie nocturne très animée. Tout vaut la peine d’être visité, de la petite chapelle au riche palais, la beauté est là, prête à être admirée.  La capitale de l’Algarve est fière de son centre animé, plein de boutiques, de terrasses, de bars et de restaurants, ainsi que de ses monuments et musées de grand intérêt et de beaux bâtiments anciens.   Il se trouve en bordure du parc naturel de Ria Formosa, une série de lagunes d’eau salée et de vasières qui sont le refuge des oiseaux migrateurs et de la faune. Après le parc naturel de Ria Formosa se trouvent les trois îles restinga, qui abritent les plages de Faro et sont parmi les moins développées de l’Algarve. 
Plus

La carte peut ne pas indiquer l'emplacement exact

Cette annonce immobilière (réf: A47z5qxcdsqcwfgb) est fournie par French Gold Property et ne constitue pas nécessairement une description précise d’un bien particulier. Bien que aplaceinthesun.com (APITS Ltd.) demande à tous les annonceurs de fournir des informations correctes, il ne vérifie pas les informations fournies et ne peut être tenu responsable pour quelque erreur que ce soit. Aplaceinthesun.com recommande de solliciter un avis juridique indépendant avant tout achat de bien immobilier à l'étranger.