Premium New development

Villa de 7 chambres à vendre à Monte Argentario

Monte Argentario, Grosseto, Toscane, Italie

€2 200 000  [£1 913 210]

Villa de 7 chambres à vendre à Monte Argentario

Monte Argentario, Grosseto, Toscane, Italie

€2 200 000  [£1 913 210]

Détails du bien immobilier


  • Chambres: 7
  • Salles de bain: 6
  • Surface du terrain: 2163 m2
  • Surface habitable: 444 m2

Description complète


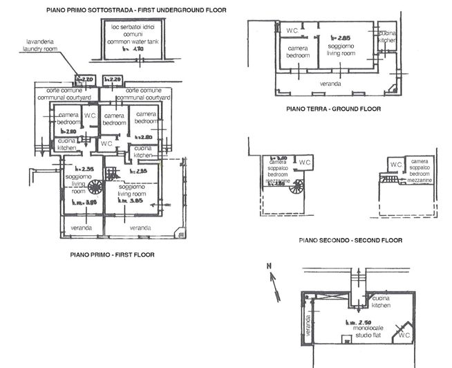
Room distribution ? Ground floor: Two apartments, each consisting of a bedroom, a bathroom, living area with kitchen, and a large terrace with porch, fireplace, and sea view. ? First floor: Another two apartments, similar to those on the ground floor, but enhanced by a mezzanine bedroom with bathroom, and a smaller terrace. ? Second floor: Independent studio apartment, completely renovated, with modern finishes and panoramic views. Furthermore, there are two private uncovered parking spaces, from which a staircase leads directly to the entrance of the house. A unique opportunity for those who look for an exclusive home in one of the most fascinating locations in the Argentario area.

STATE OF REPAIR
The villa needs renovation. The lower levels require complete redevelopment, while the third and top floor host a recently renovated studio apartment, ready for use and finished with modern materials. The structure retains original architectural details, which offer an interesting foundation for a contemporary renovation project.

UTILITIES
The water supply is guaranteed by the Fiora Aqueduct, while the wastewater disposal system is served by an Imhoff-type septic tank.

USE AND POTENTIAL USES
A splendid villa, both as a vacation home and as a main residence.

LOCATION
Poggio Pertuso, Monte Argentario

LAND REGISTRY DETAILS
For each property offered, the Great Estate group conducts – via the seller's technician – a technical due diligence. This allows us to know in detail the urbanistic planning and cadastral circumstances of each property. This due diligence may be requested by the client at the time of a real interest in the property.
Plus

La carte peut ne pas indiquer l'emplacement exact

Cette annonce immobilière (réf: 8919) est fournie par Great Estate Immobiliare Srl et ne constitue pas nécessairement une description précise d’un bien particulier. Bien que aplaceinthesun.com (APITS Ltd.) demande à tous les annonceurs de fournir des informations correctes, il ne vérifie pas les informations fournies et ne peut être tenu responsable pour quelque erreur que ce soit. Aplaceinthesun.com recommande de solliciter un avis juridique indépendant avant tout achat de bien immobilier à l'étranger.