Premium New development
Retour aux Résultats

Ferme de 21 chambres à vendre à Pérouse

Pérouse, Ombrie, Italie

€6 500 000  [£5 658 571]

Ferme de 21 chambres à vendre à Pérouse

Pérouse, Ombrie, Italie

€6 500 000  [£5 658 571]

Détails du bien immobilier


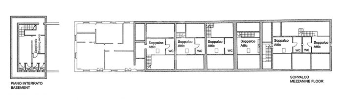
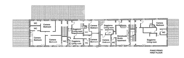
  • Chambres: 21
  • Salles de bain: 24
  • Surface du terrain: 20000 m2
  • Surface habitable: 1370 m2

Description complète


Situé au cœur de l'Ombrie, au pied d'Assise et à quelques kilomètres de Pérouse, le Relais est situé dans un cadre rural d'une beauté rare. Les bâtiments prestigieux, restaurés avec amour dans le respect de la tradition, sont Meublé avec élégance discrète et équipés de tous les conforts modernes. Les chambres Rénové sont uniques et raffinées, tandis que les deux Spa Suites offrent une expérience de détente exclusive. Le complexe est l'endroit idéal pour découvrir les environs et tous leurs trésors. Le Winter Jardin est une véranda panoramique avec de grandes fenêtres vitrées donnant sur le Jardin, un toit en bois et des meubles soigneusement sélectionnés. Pendant la saison chaude, il est possible de déjeuner ou de dîner en plein air dans le Jardin près de la piscine, avec une vue imprenable sur Assise. Certification de renovit vert. Actuellement, la capacité de sièges des restaurants est de 70/90 à l'intérieur et de 100/120 à l'extérieur. Terrain d'un total de 2,12.72 ha, en partie utilisés comme parc, Parking de surface, et Terrain arable d'environ 5 000 m2. Actuellement, la propriété dispose de 15 suites de luxe, avec la possibilité de créer deux unités supplémentaires grâce à la rénovation potentielle d'une petite annexe.

ÉTAT DE RÉPARAISON
La rénovation élégante et luxueuse allie l'authenticité d'une ferme ombrine typique, la partie structurelle a été refaite en 2005, les systèmes en 2015 et les chambres en 2020-2022. En 2024-2025, certaines dépendances et toutes les zones extérieures étaient Rénové.

UTILITÉS
La propriété comprend tous les services publics, la chaudière à pompe à chaleur et un puits de 400 litres par minute.

UTILITÉS POTENTIELS Utilisez ET
Grâce à sa position stratégique, à proximité des principaux centres ombres, la destination hôtelière de luxe est la solution qui nous permettrait de satisfaire les attentes les plus élevées des meilleurs clients du monde qui pourraient vivre des vacances inoubliables. Une autre possibilité est celle d'une résidence en partie résidentielle et en partie réceptive.

LOCATION
Située au cœur de l'Ombrie, au pied d'Assise et à quelques kilomètres de Pérouse et de son aéroport qui la relie à de nombreux centres européens tels que Londres Heathrow et Stansted, Barcelone, Vienne, Rotterdam, Bruxelles, Malte et certaines destinations italiennes telles que Catane, Palerme, Olbia, Cagliari, Brindisi et Bergame.

Terrain RÉSTRATIONS
Le groupe Great Estate procède à une diligence technique sur chaque bien acquis, par l'intermédiaire du technicien du vendeur, ce qui nous permet de connaître en détail l'état urbain et cadastrale du bien. Cette diligence raisonnable peut être demandée par le client au moment d'un intérêt réel dans la propriété.
Plus

*Certaines descriptions de biens immobiliers sur ce site sont traduites automatiquement par intelligence artificielle. Malgré tous nos efforts pour garantir leur exactitude, des erreurs ou des inexactitudes peuvent subsister. La version originale de l'annonce fait foi.

La carte peut ne pas indiquer l'emplacement exact

Cette annonce immobilière (réf: 8408) est fournie par Great Estate Immobiliare Srl et ne constitue pas nécessairement une description précise d’un bien particulier. Bien que aplaceinthesun.com (APITS Ltd.) demande à tous les annonceurs de fournir des informations correctes, il ne vérifie pas les informations fournies et ne peut être tenu responsable pour quelque erreur que ce soit. Aplaceinthesun.com recommande de solliciter un avis juridique indépendant avant tout achat de bien immobilier à l'étranger.