Premium New development

Maison de ville de 3 chambres à vendre à Palomares

Palomares, Almeria, Andalousie, Espagne

€185 000  [£161 685]

Maison de ville de 3 chambres à vendre à Palomares

Palomares, Almeria, Andalousie, Espagne

€185 000  [£161 685]

Détails du bien immobilier


  • Chambres: 3
  • Salles de bain: 2
  • Emissions: D
  • Consommation: E
  • Surface habitable: 168 m2

Description complète


This well-presented 3-bedroom, 2-bathroom townhouse is located in a quiet cul-de-sac in the friendly coastal village of Palomares, just an 800m stroll from the beach. Offering generous internal space, multiple terraces with sea views, and a hugely versatile underbuild, this is an ideal home for full-time living or long holidays.

At the front of the property is a private off-road parking space. From here a set of stairs leads up to an attractive entrance terrace fitted with roll-down blinds, creating a comfortable year-round seating area. There is also handy storage located beneath the stairs.

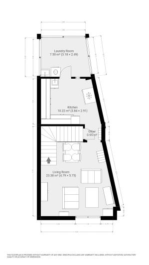
Stepping inside, the ground floor features a bright and spacious living–dining room flooded with natural light. This room enjoys air conditioning via a ducted system and two ceiling fans. An archway from the lounge then leads through to the fully fitted kitchen offering an abundance of storage and worktop space. A separate enclosed utility room sits just off the kitchen and houses additional storage as well as the washing machine and boiler.

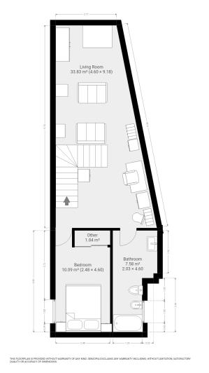
On the first floor, you’ll find the second double bedroom to your left which includes fitted wardrobes and a ceiling fan. To our right, we first have the main family bathroom with bath, wall-heater, towel heater and natural ventilation. Finally, we have the master bedroom also with fitted wardrobes and ceiling fan but also boasting access to a private terrace with beautiful sea and mountain views. This floor includes a ducted air-conditioning system separate to downstairs.

Continuing to the top floor, the property boasts two impressive roof terraces, one facing south and the other north, offering stunning views across the coastline and surrounding mountains. These spaces are perfect for relaxing in the sunshine or enjoying the cool evening breeze.

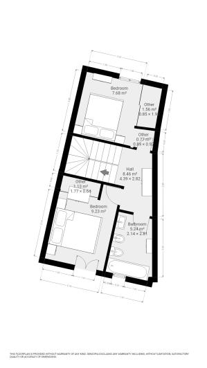
The under-build adds significant value to the property. This level includes a second lounge/home office, a third bedroom with fitted wardrobes and ceiling fan, and an additional family bathroom, making it an excellent guest suite or a private retreat for visiting family. Both the bedroom and bathroom have windows providing natural light and ventilation.

Palomares is a welcoming village with a year-round community and a fantastic selection of amenities including supermarkets, tapas bars, restaurants, shops, and a cultural centre offering Spanish classes and regular activities.

This is a wonderful opportunity to purchase a spacious home in a popular coastal village with plenty of indoor and outdoor living space.
Plus

La carte peut ne pas indiquer l'emplacement exact

Cette annonce immobilière (réf: PA-T2) est fournie par Medimar Homes et ne constitue pas nécessairement une description précise d’un bien particulier. Bien que aplaceinthesun.com (APITS Ltd.) demande à tous les annonceurs de fournir des informations correctes, il ne vérifie pas les informations fournies et ne peut être tenu responsable pour quelque erreur que ce soit. Aplaceinthesun.com recommande de solliciter un avis juridique indépendant avant tout achat de bien immobilier à l'étranger.