Premium New development

Propriété de pays de 4 chambres à vendre à Verteillac

Verteillac, Dordogne, Aquitaine, France

€262 500  [£231 257]

Propriété de pays de 4 chambres à vendre à Verteillac

Verteillac, Dordogne, Aquitaine, France

€262 500  [£231 257]

Détails du bien immobilier


  • Chambres: 4
  • Salles de bain: 4
  • Emissions: E
  • Consommation: E
  • Surface du terrain: 19000 m2
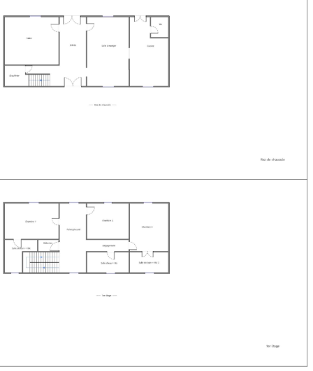
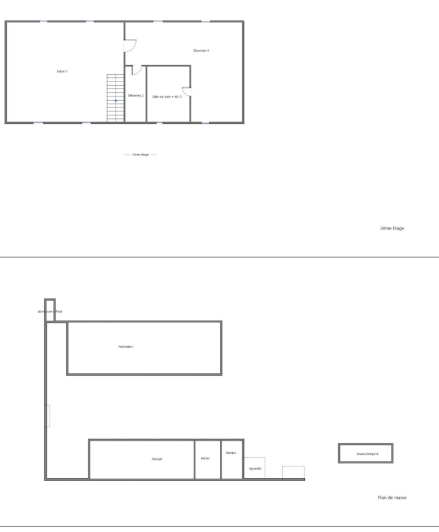
  • Surface habitable: 195 m2

Description complète


Impressive house with large garden and barn. This house sits in the Dordogne countryside, on 1.9ha of land. A spacious Maison de Maître, dating back to 1840, a house oozing with history. The rooms are bright and light, there is central heating, double glazing. There is a double aspect entrance hall, a fitted kitchen with central island, and Aga oven, dining room and lounge with wood burner. A useful boot room, utility room and WC. The original staircase leads to the landing, a bedroom with marble fireplace and en-suite bathroom. The second bedroom, and family shower room with dressing area. The third bedroom and bathroom, an ideal guest suite, or for B and B. The loft has been converted into 2 rooms and bathroom. This house stands proud and is a very handsome house, as you enter the driveway you will be blown away, the gardens are well kept with mature trees, fruit and nut trees, a chicken coop and greenhouse. The barn is an ideal place for your classic car collection you can easily fit 6 cars in here; there is an inspection pit. The upstairs of the barn could be converted if needed, it is a great storage area. The house is 195m2, the parc is 9000m2 and the paddock/field is 1 ha. Very much priced for a quick sale, you really do get a lot for your money here, so why not arrange a viewing now! The house is situated just a short drive to Verteillac or Villebois Lavalette.

Please email for more photos, videos or information.

Estimated annual home energy costs:

Between €3430 and €4720 per year

Average energy prices indexed from 2021 (including subscriptions)

Information on the risks to which this property is exposed is available on the Géorisques website: here

DPE E278 GES E58
Plus

La carte peut ne pas indiquer l'emplacement exact

Cette annonce immobilière (réf: 170A) est fournie par Wright French Properties et ne constitue pas nécessairement une description précise d’un bien particulier. Bien que aplaceinthesun.com (APITS Ltd.) demande à tous les annonceurs de fournir des informations correctes, il ne vérifie pas les informations fournies et ne peut être tenu responsable pour quelque erreur que ce soit. Aplaceinthesun.com recommande de solliciter un avis juridique indépendant avant tout achat de bien immobilier à l'étranger.