Premium New development

Villa de 3 chambres à vendre à Empa

Empa, Paphos, Chypre

€400 000  [£351 494]

Villa de 3 chambres à vendre à Empa

Empa, Paphos, Chypre

€400 000  [£351 494]

Détails du bien immobilier


  • Chambres: 3
  • Salles de bain: 2
  • Surface du terrain: 228 m2

Description complète


This modern city residence consists of three and three bedroom Detached villas, with spacious rooms and functional living areas. Complemented by a stream of high quality finishes and specifications, the project ensures comfort and elegance.

The property is located in a quite area very close to the center of Pafos Town. Their central location offers easy access to all amenities and services, blue flag beaches, hotels and resorts, international golf courses, entertainment venues and shopping malls.

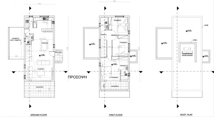
On the ground level the property comprises of an open plan fully fitted Italian style kitchen, dining with living area and a guest w/c. The upper floor offers 3 double bedrooms and 2 bathrooms. Additional there is a private covered parking and a storage room in the basement.

Architectural plans and specifications are available upon request.

Located on the outskirts of Pafos town in a Quiet, and new residential area surrounded by exclusive villas. Five minutes to sandy organized beaches, five star hotels and spa resorts and the renowned Pafos tourist area with its excellent night life, amenities and entertainment facilities. It is Within an Easy access to the highway linking all cities and airports.

3 Bedroom Detached villa:

123m2 Internal covered Area
36 m2 Covered Verandas
228 m2 Land
Provision for A/C units
Provision for central heating
Provision for security cameras
Provision for electric gate
Provision for photovoltaic system
Plus

La carte peut ne pas indiquer l'emplacement exact

Cette annonce immobilière (réf: CN9096) est fournie par Cypriano et ne constitue pas nécessairement une description précise d’un bien particulier. Bien que aplaceinthesun.com (APITS Ltd.) demande à tous les annonceurs de fournir des informations correctes, il ne vérifie pas les informations fournies et ne peut être tenu responsable pour quelque erreur que ce soit. Aplaceinthesun.com recommande de solliciter un avis juridique indépendant avant tout achat de bien immobilier à l'étranger.