Premium New development

Maison de 5 chambres à vendre à Saint John

Saint John, Grenade

€900 485  [$1 049 900]

Maison de 5 chambres à vendre à Saint John

Saint John, Grenade

€900 485  [$1 049 900]

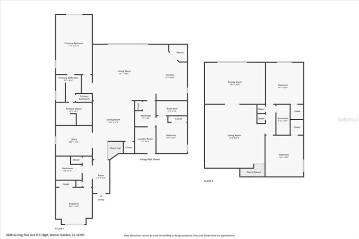
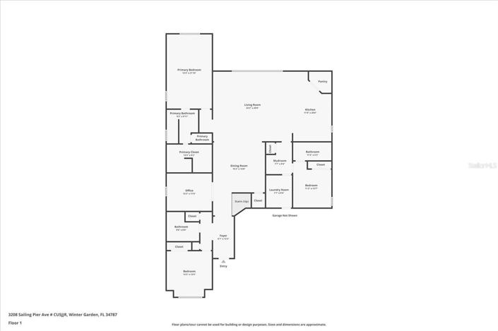
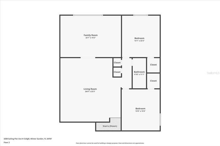
Détails du bien immobilier


  • Chambres: 5
  • Salles de bain: 4
  • Surface du terrain: 801 m2
  • Surface habitable: 371 m2

Description complète


Bienvenue au 3208 Sailing Pier Ave, la maison modèle originale de la réserve de Lakeview. Construite en 2023, cette magnifique résidence offre 5 chambres, 4 salles de bains et près de 4 000 pieds carrés d'espace de vie. Il est vendu entièrement Meublé avec des pièces sélectionnées par des designers, représentant le luxe clé en main à son meilleur.

Le premier niveau dispose d'une disposition conceptuelle ouverte remplie de lumière naturelle, d'une cuisine de style chef avec des comptoirs en quartz et un garde-manger, d'un salon et d'une salle à manger spacieux, d'une salle de repos privée et d'une suite primaire sereine et élégante. Deux chambres supplémentaires sont également situées au premier étage. Le deuxième niveau offre un deuxième salon, deux chambres supplémentaires et une belle salle de jeu pour la famille Meublé, parfaite pour le divertissement et la détente. La grande cour offre l'espace idéal pour créer votre oasis de rêve. Situé dans le quartier Résidence sécurisée des domaines de la réserve de Lakeview, les résidents bénéficient de commodités de style resort, y compris une piscine, un club, un centre de remise en forme, un terrain de jeu et des sentiers pittoresques au bord du lac. La maison est à quelques minutes de la SR-429, Disney, Winter Jardin Village, et des écoles de premier ordre. Prévoyez votre exposition privée aujourd'hui.
Plus

*Certaines descriptions de biens immobiliers sur ce site sont traduites automatiquement par intelligence artificielle. Malgré tous nos efforts pour garantir leur exactitude, des erreurs ou des inexactitudes peuvent subsister. La version originale de l'annonce fait foi.

La carte peut ne pas indiquer l'emplacement exact

Cette annonce immobilière (réf: O6402332) est fournie par Alistair Brown International Real Estate et ne constitue pas nécessairement une description précise d’un bien particulier. Bien que aplaceinthesun.com (APITS Ltd.) demande à tous les annonceurs de fournir des informations correctes, il ne vérifie pas les informations fournies et ne peut être tenu responsable pour quelque erreur que ce soit. Aplaceinthesun.com recommande de solliciter un avis juridique indépendant avant tout achat de bien immobilier à l'étranger.