Premium New development
Retour aux Résultats

Maison de ville de 3 chambres à vendre à Mojacar

Mojacar, Almeria, Andalousie, Espagne

€575 000  [£500 566]

Maison de ville de 3 chambres à vendre à Mojacar

Mojacar, Almeria, Andalousie, Espagne

€575 000  [£500 566]

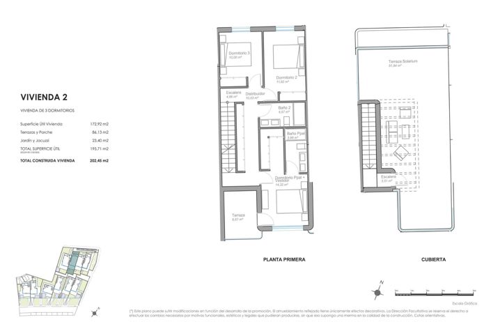
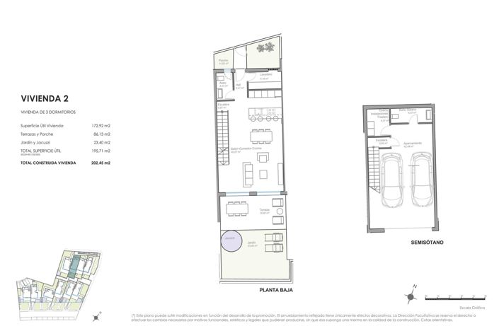
Détails du bien immobilier


  • Chambres: 3
  • Salles de bain: 3
  • Emissions: B
  • Consommation: B
  • Surface du terrain: 34 m2
  • Surface habitable: 172 m2

Description complète


Des maisons exclusives en vente en bord de mer de construction neuve à Mojácar, Costa de Almeria Boutique en bord de mer Vivre dans l'un des quartiers les plus désirables de Mojácar Découvrez une boutique résidentielle exceptionnelle composée de seulement 10 maisons exclusives situées en bord de mer de la région de La Mena à Mojácar. Ce cadre privilégié offre un accès direct à travers le Paseo del Mediterraneo aux sables dorés et aux eaux cristallines de la mer Méditerranée. Cette zone, entourée de clubs de plage, de restaurants et d'une atmosphère côtière paisible, est idéale pour ceux qui recherchent un mode de vie en bord de mer raffiné. La plage de Mojácar et le Parador de Mojácar sont à seulement 3 km et offrent une large gamme de services, de divertissement et de beauté naturelle. Des maisons élégantes conçues pour le confort et la vue sur la mer Ce complexe unique offre trois chambres à coucher et trois salles de bains disponibles en deux configurations. Les acheteurs peuvent choisir entre quatre maisons de ville avec Solarium privé et jacuzzi en option, ou six semi-villas Individuelle chacune avec leur propre Piscine privé. Toutes les maisons comprennent un grand sous-sol Garage pour deux voitures avec toilettes, des terrasses spacieuses et des espaces généreux Jardin qui maximisent le plaisir en plein air et la vue sur la mer. Spécifications de haute qualité et options de personnalisation Chaque propriété est équipée d'un système aérothermique Climatisation entièrement installé, garantissant une efficacité énergétique et un confort maximaux tout au long de l'année. Les cuisines sont Non meublé, permettant aux propriétaires de personnaliser leur conception, avec un projet de décoration complet inclus. Parmi les caractéristiques supplémentaires, on peut citer la préinstallation de la technologie de la maison intelligente, la porte d'entrée renforcée et des matériaux de construction de haute qualité qui améliorent la sécurité, la conception et la durabilité. L'emplacement de premier plan avec une excellente connectivité Situé dans un cadre calme au bord de la plage, le développement bénéficie d'un accès pratique aux principales destinations le long de la Costa de Almeria. Le village de Mojácar, avec ses pittoresques rues blanchies, se trouve à quelques minutes en voiture. Les points d'intérêt populaires sont: Mojácar Playa 3 km Parador de Mojácar 3 km Marina de Garrucha 12 km Campo de golf Marina Golf 6 km Aeropuerto de Almeria 80 km Aeropuerto de Murcia Corvera 150 km Sécuriser votre plage de première ligne Maison à Mojácar Vivez un style de vie où la mer fait partie de votre routine quotidienne et le luxe se mélange à la sérénité côtière. Que vous recherchiez une résidence de vacances, une résidence permanente ou une Investissement exclusive, ce boutique de plage offre une valeur inégalée. Contactez-nous dès aujourd'hui pour obtenir des informations supplémentaires ou pour organiser une visite.
Plus

*Certaines descriptions de biens immobiliers sur ce site sont traduites automatiquement par intelligence artificielle. Malgré tous nos efforts pour garantir leur exactitude, des erreurs ou des inexactitudes peuvent subsister. La version originale de l'annonce fait foi.

La carte peut ne pas indiquer l'emplacement exact

Cette annonce immobilière (réf: YHS64582P) est fournie par Your Move Spain et ne constitue pas nécessairement une description précise d’un bien particulier. Bien que aplaceinthesun.com (APITS Ltd.) demande à tous les annonceurs de fournir des informations correctes, il ne vérifie pas les informations fournies et ne peut être tenu responsable pour quelque erreur que ce soit. Aplaceinthesun.com recommande de solliciter un avis juridique indépendant avant tout achat de bien immobilier à l'étranger.