Premium New development
Retour aux Résultats

Maison de ville de 5 chambres à vendre à Adeje

Adeje, Tenerife, Iles Canaries, Espagne

€1 775 000  [£1 545 225]

Maison de ville de 5 chambres à vendre à Adeje

Adeje, Tenerife, Iles Canaries, Espagne

€1 775 000  [£1 545 225]

Détails du bien immobilier


  • Chambres: 5
  • Salles de bain: 3
  • Surface du terrain: 560 m2
  • Surface habitable: 323 m2

Description complète


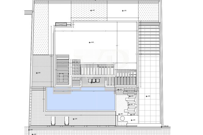
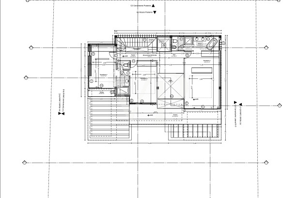
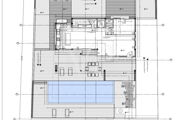
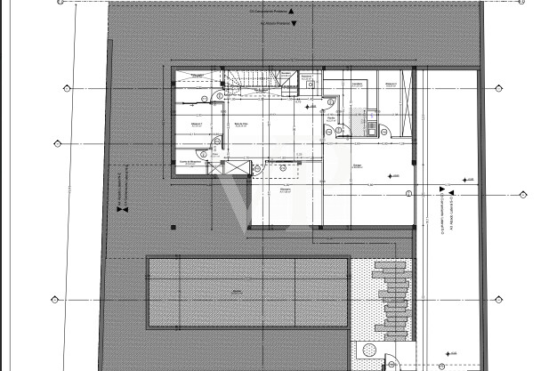
Cette villa Villa en construction est l'une des plus élégantes du quartier prestigieux, sécurisé et accueillant de Roque del Conde et à quelques minutes de toutes les commodités de la région. La propriété offre un style moderne et unique. Ce chef-d'œuvre sensationnel, conçu à la perfection, se caractérise par des intérieurs et des extérieurs fascinants aux normes les plus élevées et avec les meilleurs matériaux. À partir d'un grand salon au rez-de-chaussée qui relie à l'élégante cuisine, à ce même étage se trouvent une chambre et une salle de bain pour les invités, toutes avec accès aux espaces extérieurs parfaitement aménagés. Les magnifiques finitions en bois naturel ajoutent de la chaleur à tout le Maison. Le Villa est réparti sur trois étages avec un design d'escalier exceptionnellement attrayant. Sur le Rez-de-chaussée, il y a une chambre, un gymnase, une salle de cinéma et une salle de bain, plus le Garage. La spacieuse chambre principale avec salle de bain Salle de bains attenante, et une salle de bains, est située sur le Dernier étage et dispose d'un incroyable Terrasse avec une vue imprenable sur la mer. Au même étage, nous trouvons une autre salle de bain et deux chambres supplémentaires avec une vue imprenable sur la mer et La Gomera. L'ensemble de la propriété peut être contrôlée par le système Smart Home intégré, elle dispose également d'une piscine à débordement où vous pourrez profiter du merveilleux soleil de Tenerife. - Finitions de luxe - Vue sur la mer et La Gomera - Piscine à débordement chauffée - Système Smart Maison - Armoire de rangement - Gymnase - Salle de cinéma - Cuisine moderne - Chill out zone - Barbecue zone - Scènes de lumière nocturne - Grandes fenêtres - Lumière naturelle Roque del Conde est un emplacement de haute qualité et très populaire dans le sud de Tenerife, au-dessus de l'autoroute de Costa Adeje. Il y a beaucoup de propriétés qui sont utilisées comme résidences de vacances, mais beaucoup sont également utilisées pour leur résidence principale dans ce quartier résidentiel en raison de la bonne infrastructure. Roque del Conde appartient à la municipalité d'Adeje et offre, en plus de la célèbre école internationale Colegio Costa Adeje, de nombreux magasins, restaurants, centres médicaux, bouchers, boulangers, etc. C'est un quartier calme, mais à deux pas du centre touristique de Costa Adeje, avec de belles plages comme Playa Fañabe, Playa del Duque et une variété de possibilités touristiques et commerçantes. Roque del Conde est idéal pour ceux qui veulent vivre dans un endroit calme et beau avec une vue magnifique et qui veulent encore atteindre les centres touristiques en quelques minutes. que nous transmettons proviennent du vendeur ou du propriétaire. Nous n'assumons donc aucune responsabilité quant à l'exactitude ou à l'exhaustivité des informations. Il incombe donc à nos clients de vérifier l'exactitude des informations et des détails contenus dans les informations sur les biens. Toutes les offres immobilières sont non contraignantes et soumises à erreurs, vente et location préalables ou utilisation intermédiaire Autre. Laissez un de nos spécialistes immobiliers analyser professionnellement la valeur actuelle de votre propriété gratuitement et sans obligation. Notre réseau international nous permet de rassembler au mieux les vendeurs ou les propriétaires et les parties intéressées.
Plus

*Certaines descriptions de biens immobiliers sur ce site sont traduites automatiquement par intelligence artificielle. Malgré tous nos efforts pour garantir leur exactitude, des erreurs ou des inexactitudes peuvent subsister. La version originale de l'annonce fait foi.

La carte peut ne pas indiquer l'emplacement exact

Cette annonce immobilière (réf: ES 22 318 3663) est fournie par Finest Property Tenerife S.L. et ne constitue pas nécessairement une description précise d’un bien particulier. Bien que aplaceinthesun.com (APITS Ltd.) demande à tous les annonceurs de fournir des informations correctes, il ne vérifie pas les informations fournies et ne peut être tenu responsable pour quelque erreur que ce soit. Aplaceinthesun.com recommande de solliciter un avis juridique indépendant avant tout achat de bien immobilier à l'étranger.