Premium New development
Retour aux Résultats

Maison de ville de 1 chambre à vendre à Spadafora

Spadafora, Messine, Sicile, Italie

€58 000  [£50 492]

Maison de ville de 1 chambre à vendre à Spadafora

Spadafora, Messine, Sicile, Italie

€58 000  [£50 492]

Détails du bien immobilier


  • Chambres: 1
  • Salles de bain: 1
  • Surface du terrain: 70 m2

Description complète


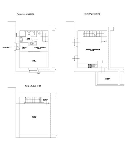
Nichée dans l'atmosphère intemporelle du village médiéval de Venetico Superiore, cette élégante maison Individuelle allie parfaitement le caractère sicilien authentique au confort moderne. Situé au pied de l'impressionnant château aragonais de Venetico (XVe siècle), le bien bénéficie d'un magnifique Vue panoramique qui s'étend sur le golfe de Milazzo jusqu'à l'enchanteur de l'île Eolie, une destination classée au patrimoine mondial de l'UNESCO. Entièrement Rénové en 2015 en utilisant des matériaux de haute qualité, le Maison est disposé sur plusieurs niveaux: Rez-de-chaussée Entrée accueillante, chambre double confortable et salle de bain raffinée avec douche et buanderie dédiée. Le premier étage espace de vie Un escalier remarquable en marbre jaune Cléopâtre mène à l'espace de vie lumineux: un salon et une cuisine à ciel ouvert inondés de lumière naturelle grâce à deux grandes fenêtres panoramiques et un Balcon idéal pour les petits déjeuners en plein air avec vue sur la mer. Le vrai point culminant de la maison. Accès par un escalier en bois de cerisier, cette chambre privée Terrasse offre un cadre exceptionnel pour des repas en plein air, des apéritifs au coucher du soleil et des soirées sous les étoiles avec vue sur le château éclairé et l'horizon méditerranéen. Pourquoi cette propriété se démarque-prête à emménager complètement Rénové en 2015 et immédiatement habitable. Seules de légères modifications esthétiques peuvent être souhaitées pour personnaliser les finitions. Complément juridique et efficacité énergétique Le bien est entièrement conforme aux réglementations italiennes en matière d'aménagement et de cadastre. Les systèmes certifiés et la pompe à chaleur à haut rendement Climatisation assurent le confort toute l'année. Profitez de la vie de village avec des cafés et des restaurants traditionnels à À distance de marche, tout en restant à seulement 8 minutes des plages de Venetico Marina et à 30 minutes de Porto di Milazzo, la principale porte d'entrée des îles Éoliennes. Accès et liaisons internationales La maison est facilement accessible depuis les principaux aéroports internationaux, ce qui la rend idéale pour un Résidence secondaire ou une location Investissement: • Aeroporto di Catania-Fontanarossa 132 km (environ. L'aéroport de Stuttgart est situé à 1h 30min. 1h 10min par ferry ou hydroptère) • Aéroporto Falcone e Borsellino 239 km (environ 2h 30min)
Plus

*Certaines descriptions de biens immobiliers sur ce site sont traduites automatiquement par intelligence artificielle. Malgré tous nos efforts pour garantir leur exactitude, des erreurs ou des inexactitudes peuvent subsister. La version originale de l'annonce fait foi.

La carte peut ne pas indiquer l'emplacement exact

Cette annonce immobilière (réf: AS-VEN02) est fournie par Authentic Sicily Realty et ne constitue pas nécessairement une description précise d’un bien particulier. Bien que aplaceinthesun.com (APITS Ltd.) demande à tous les annonceurs de fournir des informations correctes, il ne vérifie pas les informations fournies et ne peut être tenu responsable pour quelque erreur que ce soit. Aplaceinthesun.com recommande de solliciter un avis juridique indépendant avant tout achat de bien immobilier à l'étranger.