Premium New development

Villa de 3 chambres à vendre à Geroskipou

Geroskipou, Paphos, Chypre

€495 000  [£430 922]

Villa de 3 chambres à vendre à Geroskipou

Geroskipou, Paphos, Chypre

€495 000  [£430 922]

Détails du bien immobilier


  • Chambres: 3
  • Salles de bain: 3
  • Surface du terrain: 285 m2
  • Surface habitable: 243 m2

Description complète


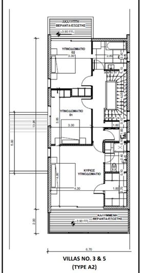
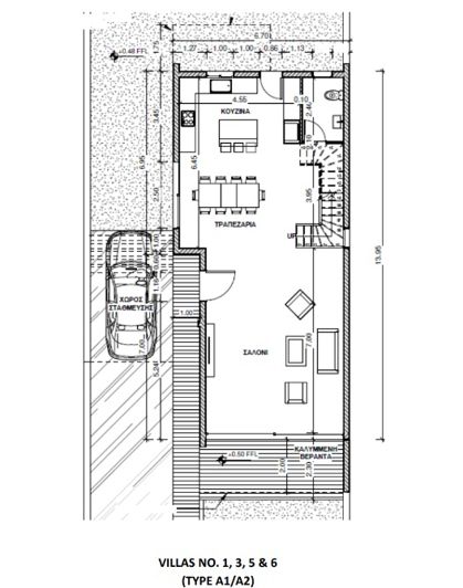
Villa à vendre en construction à Geroskipou, Paphos Situé dans une partie calme mais bien desservie de Geroskipou, ce Villa contemporain combine des intérieurs spacieux et ouverts, des fenêtres allant du sol au plafond et des espaces extérieurs privés le tout dans un projet de boutique de seulement six maisons. Avec la possibilité d'ajouter un Piscine privée, un toit Jardin ou Chauffage au sol, la propriété offre la rare opportunité de personnaliser une maison moderne à votre style de vie personnel. Livraison dans les 20 mois avec choix personnalisé de finitions Projet: Développement boutique de 6 villas Individuelle TVA: Éligible à 5% TVA (19% non applicable) Efficacité énergétique: Classe A Détails de la propriété Type A2 Chambres à coucher: 3 Salles de bains: 3 Privées Parking Surface du terrain: 285 m2 Surface couverte: 188 m2 Veranda couverte: 55 m2 Surface couverte totale: 243 m2 Les villas 3 et 5 ont la possibilité d'être transformées en petites villas au prix de 425.000€ + TVA Concept de design et de vie Bright planètes ouvertes salon et salle à manger fenêtres de sol à plafond reliant les espaces intérieurs et extérieurs chambre à coucher avec un centre de gestion de la qualité VRF dissimulée climatisation XYZ9ZYZ avec un espace de rangement pour les vêtements et un espace de rangement intérieur sans fil d'air pour les résidents XYZ
Plus

*Certaines descriptions de biens immobiliers sur ce site sont traduites automatiquement par intelligence artificielle. Malgré tous nos efforts pour garantir leur exactitude, des erreurs ou des inexactitudes peuvent subsister. La version originale de l'annonce fait foi.

La carte peut ne pas indiquer l'emplacement exact

Cette annonce immobilière (réf: AMH-EGV-V5) est fournie par Sunshine Luxury Villas et ne constitue pas nécessairement une description précise d’un bien particulier. Bien que aplaceinthesun.com (APITS Ltd.) demande à tous les annonceurs de fournir des informations correctes, il ne vérifie pas les informations fournies et ne peut être tenu responsable pour quelque erreur que ce soit. Aplaceinthesun.com recommande de solliciter un avis juridique indépendant avant tout achat de bien immobilier à l'étranger.