Premium New development

Villa de 3 chambres à vendre à Arboleas

Arboleas, Almeria, Andalousie, Espagne

€295 000  [£257 822]

Villa de 3 chambres à vendre à Arboleas

Arboleas, Almeria, Andalousie, Espagne

€295 000  [£257 822]

Détails du bien immobilier


  • Chambres: 3
  • Salles de bain: 2
  • Surface du terrain: 600 m2
  • Surface habitable: 118 m2

Description complète


En vente exclusive avec AlmeriaCasas.

Projet de villa moderne à Limaria (Arboleas, Almería)

Nous vous ????????ons ce projet de villa contemporaine attrayant, conçu pour offrir confort, fonctionnalité et une excellente qualité de vie dans un environnement calme et ensoleillé.

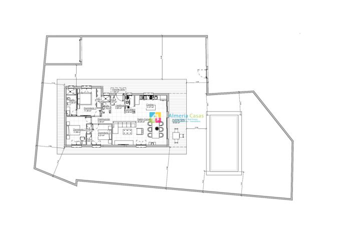
La propriété dispose de 3 grandes chambres et de 2 salles de bains complètes, avec une distribution pratique et bien pensée. L’espace lumineux ouvert comprenant cuisine, salle à manger et salon crée une atmosphère moderne et conviviale, idéale pour la vie quotidienne et les réceptions.

La cuisine est entièrement équipée avec électroménagers, y compris plaque vitrocéramique, four, hotte aspirante, réfrigérateur, micro-ondes et lave-linge ou lave-vaisselle (au choix), prête à emménager.

À l’extérieur, la propriété offre un grand porche, parfait pour profiter du climat méditerranéen toute l’année, ainsi qu’une élégante piscine privée de 8x4 mètres.

De plus, elle dispose d’un garage de 5x4 mètres, offrant confort et espace de rangement supplémentaire.

La maison comprend une pré-installation pour la climatisation et un système d’eau chaude solaire, garantissant efficacité énergétique et économies.

Située à Limaria, Arboleas (Almería), cette propriété combine tranquillité, intimité et proximité de tous les services essentiels.

Une excellente opportunité de construire la maison de vos rêves dans un cadre privilégié.
Plus

La carte peut ne pas indiquer l'emplacement exact

Cette annonce immobilière (réf: 2915) est fournie par Almeria Casas et ne constitue pas nécessairement une description précise d’un bien particulier. Bien que aplaceinthesun.com (APITS Ltd.) demande à tous les annonceurs de fournir des informations correctes, il ne vérifie pas les informations fournies et ne peut être tenu responsable pour quelque erreur que ce soit. Aplaceinthesun.com recommande de solliciter un avis juridique indépendant avant tout achat de bien immobilier à l'étranger.