Premium New development
Retour aux Résultats

Villa de 3 chambres à vendre à Finestrat

Finestrat, Alicante, Région de Valence, Espagne

€1 195 000  [£1 040 306]

Villa de 3 chambres à vendre à Finestrat

Finestrat, Alicante, Région de Valence, Espagne

€1 195 000  [£1 040 306]

Détails du bien immobilier


  • Chambres: 3
  • Salles de bain: 3
  • Surface du terrain: 491 m2
  • Surface habitable: 154 m2

Description complète


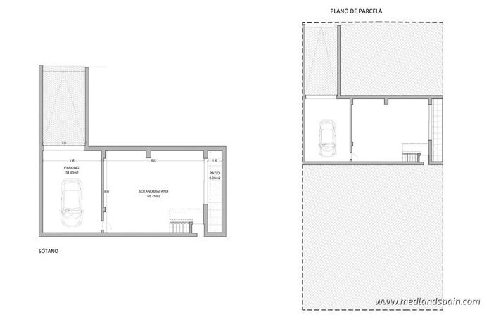
Nouveau projet de villas individuelles, situé dans un endroit naturellement magnifique à Finestrat, près du parc à thème Terra Mítica, et à seulement 10 minutes de route des plages spectaculaires de Benidorm. Le plus grand centre commercial de la région, avec tous les services nécessaires au quotidien, des boutiques, des bars et des restaurants, se trouve à proximité du projet.Ces incroyables villas individuelles sont construites sur des terrains allant de 450 à 581 m² et sont disponibles en différents modèles : villa de deux étages avec 3 chambres et 3 salles de bains ; villa de deux étages avec 3 ou 4 chambres, 3 salles de bains et un sous-sol/garage. Toutes les villas présentent un rez-de-chaussée ouvert, combinant le salon, le coin repas et la cuisine. On trouve également une chambre et une salle de bains à l´étage inférieur. Le premier étage est réservé aux autres chambres et salles de bains, incluant la chambre principale avec sa salle de bains et sa terrasse privée offrant une vue spectaculaire sur la mer. Les grandes fenêtres du séjour donnent sur une terrasse couverte d´une pergola, avec une cuisine extérieure et un barbecue à bois, qui est l´endroit idéal pour profiter du style de vie méditerranéen en plein air. Le beau jardin entoure la villa et inclut une piscine privée, et a été aménagé avec des plantes locales. Le sous-sol est divisé en une salle polyvalente avec un patio anglais, et un garage pour 1-2 voitures, selon le modèle.Ces villas de luxe sont construites avec des matériaux de première qualité et incluent des prestations de confort telles que la climatisation par conduits, des volets électriques dans les chambres, des appareils électroménagers, un système Smart Home, un jardin paysager avec système d´irrigation et éclairage extérieur, une piscine privée, un parking sur place avec un portail motorisé pour accéder à la propriété.
Plus

La carte peut ne pas indiquer l'emplacement exact

Cette annonce immobilière (réf: N-4153892-20250325-2025-2) est fournie par Medland Spain et ne constitue pas nécessairement une description précise d’un bien particulier. Bien que aplaceinthesun.com (APITS Ltd.) demande à tous les annonceurs de fournir des informations correctes, il ne vérifie pas les informations fournies et ne peut être tenu responsable pour quelque erreur que ce soit. Aplaceinthesun.com recommande de solliciter un avis juridique indépendant avant tout achat de bien immobilier à l'étranger.