Premium New development

Maison de 4 chambres à vendre à Saint John

Saint John, Grenade

€452 154  [$520 000]

Maison de 4 chambres à vendre à Saint John

Saint John, Grenade

€452 154  [$520 000]

Détails du bien immobilier


  • Chambres: 4
  • Salles de bain: 0
  • Surface du terrain: 607 m2
  • Surface habitable: 319 m2

Description complète


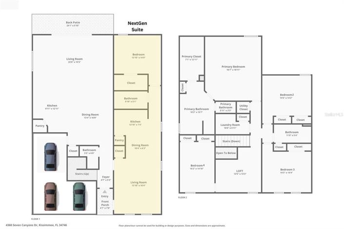
One or more photo(s) has been virtually staged. NO CDD FEE, NO CARPET and low HOA of just $87 per month inclusive of a community pool, soccer field and playground. This beautifully maintained 2020-built multi-generational home on a pond in Sedona features a rare Next Gen layout with a private one-bedroom in-law suite complete with a full kitchen, bathroom, washer/dryer, living room, and separate entrance, making it ideal for extended family or rental income to supplement your mortgage. The main home includes a 3-car tandem garage, open-concept living spaces, and has been freshly painted inside and out with all new door hardware for a move-in ready modern, refreshed feel. This spacious main home offers 4 bedrooms, 2.5 baths, and an oversized loft perfect for a media room or play area. The kitchen features a breakfast bar and a walk-in pantry, while the living room features sliding glass doors that open to peaceful pond views from your backyard. Centrally located just minutes from The Loop, US-192, and the Poinciana Blvd SunRail station, you will enjoy quick access to Medical City Lake Nona, Hunter’s Creek, and Downtown Kissimmee’s shops and Lakefront Park. With easy proximity to the Florida Turnpike, Hwy 417, and I-4, commuting to Valencia College, HCA Florida Hospital, Disney and Orlando theme parks is a breeze. This home perfectly combines flexibility, comfort, and an unbeatable location. Schedule your showing today!
Plus

La carte peut ne pas indiquer l'emplacement exact

Cette annonce immobilière (réf: P4938189) est fournie par Alistair Brown International Real Estate et ne constitue pas nécessairement une description précise d’un bien particulier. Bien que aplaceinthesun.com (APITS Ltd.) demande à tous les annonceurs de fournir des informations correctes, il ne vérifie pas les informations fournies et ne peut être tenu responsable pour quelque erreur que ce soit. Aplaceinthesun.com recommande de solliciter un avis juridique indépendant avant tout achat de bien immobilier à l'étranger.