Premium New development

Maison de 5 chambres à vendre à Saint John

Saint John, Grenade

€655 623  [$754 000]

Maison de 5 chambres à vendre à Saint John

Saint John, Grenade

€655 623  [$754 000]

Détails du bien immobilier


  • Chambres: 5
  • Salles de bain: 3
  • Surface du terrain: 1424 m2
  • Surface habitable: 283 m2

Description complète


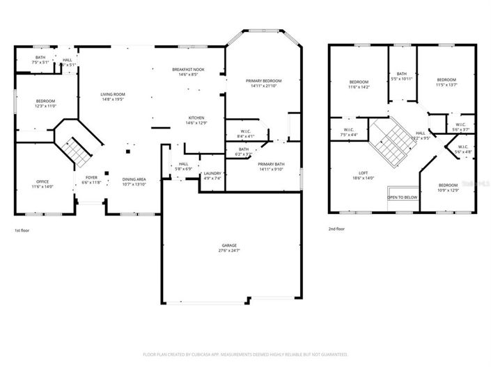
Beautifully situated on a spacious lot in the Reserve at Lake Mary, 792 Blairmont Lane offers a warm, inviting 5-bedroom, 3-bath pool home with office/den space, perfect for both everyday living and entertaining. An elegant foyer opens to light-filled dining spaces, while the open kitchen and family room create a comfortable central hub overlooking the backyard. The kitchen features plentiful cabinetry, a generous prep island, and a casual dining area, all flowing seamlessly into the family room with views of the pool and lanai. The flexible floor plan includes a convenient downstairs primary suite plus an additional bedroom and full bath, ideal for guests, multigenerational living, or a private office/den space. Upstairs, the bonus loft offers additional living area, while the secondary bedrooms provide versatility for family, work, or play. Step outside to the covered lanai and screened pool, where you can enjoy Florida living year-round with plenty of room for grilling, outdoor dining, and play in the fenced backyard. Located in a sought-after Lake Mary community, this home offers easy access to top-rated Seminole County schools, shopping, dining, major roadways, and area employers. With its generous square footage, functional layout, and desirable location, 792 Blairmont Lane is an excellent opportunity for buyers seeking a comfortable, well-located home in one of Lake Mary’s most popular neighborhoods. Recent updates include a roof replacement in 2020, first-floor A/C replacement in 2020, exterior repainting in 2023, hot water heater replacement in 2024, and interior wall repainting in 2024.
Plus

La carte peut ne pas indiquer l'emplacement exact

Cette annonce immobilière (réf: O6391979) est fournie par Alistair Brown International Real Estate et ne constitue pas nécessairement une description précise d’un bien particulier. Bien que aplaceinthesun.com (APITS Ltd.) demande à tous les annonceurs de fournir des informations correctes, il ne vérifie pas les informations fournies et ne peut être tenu responsable pour quelque erreur que ce soit. Aplaceinthesun.com recommande de solliciter un avis juridique indépendant avant tout achat de bien immobilier à l'étranger.