Premium New development

Terre à vendre à Limassol

Limassol, Limassol, Chypre

€170 000  [£147 505]

Terre à vendre à Limassol

Limassol, Limassol, Chypre

€170 000  [£147 505]

Détails du bien immobilier


  • Chambres: 0
  • Salles de bain: 0
  • Surface du terrain: 694 m2

Description complète


Residential Plot For Sale in Palodia, Limassol

Located in the peaceful residential area of Palodia, this 694 m² plot offers an excellent opportunity for building a private home in one of Limassol’s most sought-after suburban locations. The area is known for its quiet environment, low-density housing and close proximity to private schools, the highway and essential amenities.

Specifications:
Status: Residential plot
Plot Size: 694 m²
Building Density: 20%
Coverage: 20%
Buildable Area: 140 m²
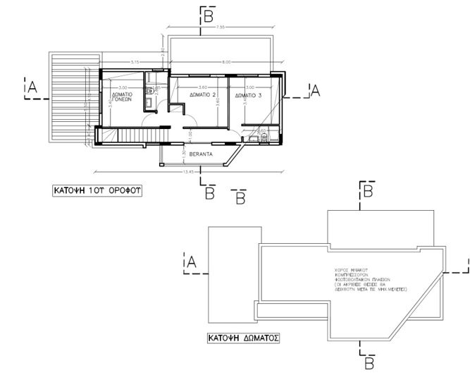
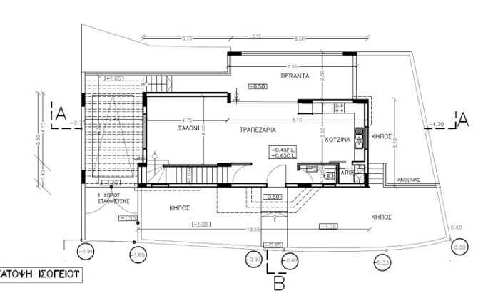
Architectural Plans: Included
Building Permit: Approved
Electricity: Yes
Water Supply: Yes
Sewage System: Yes
Road Access: Asphalt road
Location: Palodia, Limassol

This residential plot offers generous dimensions and a favourable building ratio, making it ideal for constructing a spacious family home with outdoor areas, garden or pool. The land benefits from full utility access, ensuring a smooth and efficient construction process. Approved architectural plans and a valid building permit allow immediate commencement of works, significantly reducing development time.

The plot is situated in a low-density residential zone surrounded by modern homes and green landscapes. According to recent announcements, building density and coverage are expected to increase by the end of 2025, enhancing the long-term value and development potential of the property.

Key Features:
Large 694 m² residential plot
Approved architectural plans
Valid building permit
Full utility access (water, electricity, sewage)
Asphalt road frontage
Low-density residential area
Strong future development potential
Expected increase in building density and coverage
Ideal for a custom-designed family home

Location:
Palodia is a highly desirable residential suburb of Limassol, known for its peaceful atmosphere, green surroundings and excellent accessibility. The area is minutes from top private schools, supermarkets, cafés and the highway, offering a balanced lifestyle close to the city while maintaining privacy and tranquillity. Its strong demand and upcoming zoning improvements make it an attractive long-term investment.
Plus

La carte peut ne pas indiquer l'emplacement exact

Cette annonce immobilière (réf: NHPD-P878) est fournie par Sunshine Luxury Villas et ne constitue pas nécessairement une description précise d’un bien particulier. Bien que aplaceinthesun.com (APITS Ltd.) demande à tous les annonceurs de fournir des informations correctes, il ne vérifie pas les informations fournies et ne peut être tenu responsable pour quelque erreur que ce soit. Aplaceinthesun.com recommande de solliciter un avis juridique indépendant avant tout achat de bien immobilier à l'étranger.