Premium New development
Retour aux Résultats

Villa de 5 chambres à vendre à Tresana

Tresana, Lunigiana, Toscane, Italie

€360 000  [£313 398]

Villa de 5 chambres à vendre à Tresana

Tresana, Lunigiana, Toscane, Italie

€360 000  [£313 398]

Détails du bien immobilier


  • Chambres: 5
  • Salles de bain: 2

Description complète


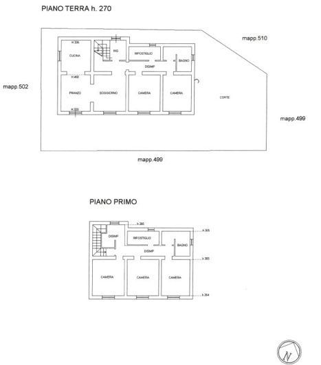
Spacieux Individuelle Maison (232 m2) avec accès en voiture, Parking, Terrain de plus d'un hectare plus une dépendance en pierre à restaurer, offrant un hébergement polyvalent et confortable. Situé dans une position élevée au milieu d'une belle campagne, le bien a été construit en 2010 et est présenté dans un excellent état. La propriété peut être utilisée comme une grande maison familiale, ou pourrait être facilement reconfigurée pour créer deux appartements séparés. Le bâtiment en pierre est sur 2 étages et offre un potentiel pour une variété d'utilisations. L'hébergement comprend: hall d'entrée Rez-de-chaussée avec escalier. Cuisine équipée, salle à manger et salon avec Cheminée, tous reliés par de hautes arches en briques dans un espace social aéré. 2 chambres, salle de bains avec baignoire, buanderie et 2 entrepôts. À l'étage, il y a une petite cuisine qui ouvre sur Terrasse, 3 chambres et une salle de bains avec douche. Une chambre a un poêle à bois, et est actuellement utilisée comme deuxième salon confortable. À l'extérieur, il y a un accès facile en voiture le long d'une piste bien entretenue et de nombreux Parking. Il y a Terrain autour du Maison d'environ 11 600 m2, y compris des oliviers et des arbres fruitiers, avec suffisamment d'espace pour créer une piscine (sous réserve des autorisations de planification habituelles). Il y a de magnifiques vues à travers la campagne jusqu'aux sommets des Alpes Apuanes. Le Maison est connecté aux services publics et prêt à être utilisé. Il existe à la fois du gaz Chauffage central (bombolone privé au gaz) et du bois Chauffage central. Des panneaux solaires pour l'eau chaude. Deux grandes citernes souterraines d'eau de pluie (10.000 litres) fournissent l'irrigation pour le Terrain. Situé dans une position panoramique sur une colline près du village de Tresana, les commodités sont à quelques minutes en voiture de Barbarasco (banque, magasin, restaurants, école, magasin). Quelques minutes plus loin se trouve Aulla, la porte d'entrée de Lunigiana, l'une des plus grandes villes de la région. Elle est dominée par la forteresse massive "La Brunella" située sur la colline surplombant la ville. Avec une histoire fascinante et colorée, la forteresse abrite maintenant le musée d'histoire naturelle de Lunigiana. La ville dispose d'un bon choix de magasins indépendants, de supermarchés, de centres médicaux, de gare principale et de jonctions d'autoroute. Il y a un bon choix de bars et de cafés, de pizzerias et de restaurants, et un marché de rue animé remplit le centre-ville tous les samedis matin. Il y a beaucoup de grandes excursions d'une journée à explorer. Lucques est une belle ville toscane protégée par de très épais murs du XVIe siècle, avec quelques-unes des meilleures architectures médiévales et de la Renaissance de Italie, une excellente restauration, des marchés d'antiquités, de la musique classique et rock au Lucques Summer Festival et un accès facile aux magnifiques villas voisines dans les collines environnantes. La place centrale de l'amphithéâtre est magnifique. Pietrasanta est une ville médiévale et artistique historique dans le nord de la Toscane parfois appelée la ville des artistes ou Petite Athènes pour ses studios et ses monuments en marbre. Il est un centre important pour le travail du marbre et a été utilisé comme source de marbre par Michel-Ange. Et bien sûr, les trésors artistiques et architecturaux de Florence sont incontournables. La côte ligure est facilement accessible. Les Cinque Terre (patrimoine mondial de l'UNESCO) sont constitués de cinq villages de pêcheurs: Monterosso, Vernazza, Corniglia, Manarola, Riomaggiore et des 18 km de promenades côtières le long des anciennes voies de mule entre elles, dont la plus célèbre est la Via dell'Amore. Juste au sud des Cinque Terre se trouve Portovenere où vous pouvez prendre un ferry pour les Cinque Terre ou pour Lerici, nager dans la baie de Byrons ou visiter l'une des îles Palmaria, Tino ou Tinetto. Les villages de Lerici et San Terenzo, chacun avec des châteaux impressionnants, se trouvent face à face dans le golfe des poètes et Tellaro a été nommé l'un des 100 plus beaux hameaux de Italie. Le voisin Fiascherino est tout aussi beau. En plus d'être connue comme une ville touristique balnéaire, Viareggio est célèbre pour son carnaval en février et le festival Puccini en juillet et août. Le littoral ligurien offre donc d'innombrables possibilités de baignade ou de voile, de croisière en bateau ou de simple "passeggiata al mare" et de dégustation d'un apéritif. La côte ligure est spéciale et Lunigiana, la partie la plus septentrionale de la Toscane, est magique. Le paysage vallonné est abondamment parsemé de châteaux de la vigne Médicis ou de la Malaspina et le calendrier des festivals toute l'année offre de merveilleuses spécialités locales à goûter dans chacune des villes et villages anciens. Les aéroports de Pise, Parme et Gênes sont tous à un peu plus d'une heure. Distance: Aulla ( gare et autoroute) 8 km, Lerici (village de pêcheurs avec plages) 30 km, Lucques 80 km, Pise 85 km
Plus

*Certaines descriptions de biens immobiliers sur ce site sont traduites automatiquement par intelligence artificielle. Malgré tous nos efforts pour garantir leur exactitude, des erreurs ou des inexactitudes peuvent subsister. La version originale de l'annonce fait foi.

La carte peut ne pas indiquer l'emplacement exact

Cette annonce immobilière (réf: poderefolletto2536) est fournie par Larchitrave Immobiliare et ne constitue pas nécessairement une description précise d’un bien particulier. Bien que aplaceinthesun.com (APITS Ltd.) demande à tous les annonceurs de fournir des informations correctes, il ne vérifie pas les informations fournies et ne peut être tenu responsable pour quelque erreur que ce soit. Aplaceinthesun.com recommande de solliciter un avis juridique indépendant avant tout achat de bien immobilier à l'étranger.