Premium New development

Propriété à vendre à Limassol

Limassol, Limassol, Chypre

€2 674 440  [£2 344 355]

Propriété à vendre à Limassol

Limassol, Limassol, Chypre

€2 674 440  [£2 344 355]

Détails du bien immobilier


  • Chambres: 0
  • Salles de bain: 0
  • Surface habitable: 189 m2

Description complète


Off plan modern office floor for sale in Limassol Marina

This office building is located in the heart of Limassol, on the first line by the sea in the famous Molos area

Delivery date: June 2028
The price is subject to VAT

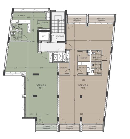
The offices are located on floor three of six floors and the building has a lift

The commercial property consists of:
Interior area: 169 m2
Covered veranda: 20 m2
Total covered area: 189m2

Energy rating tbc

Included in the price:
Shell & core finishings of the office spaces
Marble walls and floors in the restrooms
Ceramic tile floors in the verandas
Provisions for A/C in every office
High standard sanitary ware from European brands in common areas and restrooms
Thermal aluminum doors and window frames with double glazing
Provisions for electrical installations and lighting fittings
Provisions for plumbing-drainage, with hot and cold water and an instant heater included
No loose furniture is included
Keypad intercom at the lobby main entrance door

Note: All the finishes, movable furniture, home appliances & interior items are extras

Expanding our commercial portfolio with an envious office location, truly in the very. heart of the city. Situated right at the sea shore, next to Limassol Marina, Molos Park and the Old Town, heart is all about restructuring the way we work. Simply imagine working from the office every day with picturesque sea views, visible from all the 6 floors of the building, having lunch by the shore, as well as having access to the dynamic city life, that is in the walking distance from the office.
Plus

La carte peut ne pas indiquer l'emplacement exact

Cette annonce immobilière (réf: BF-HE-A302) est fournie par Sunshine Luxury Villas et ne constitue pas nécessairement une description précise d’un bien particulier. Bien que aplaceinthesun.com (APITS Ltd.) demande à tous les annonceurs de fournir des informations correctes, il ne vérifie pas les informations fournies et ne peut être tenu responsable pour quelque erreur que ce soit. Aplaceinthesun.com recommande de solliciter un avis juridique indépendant avant tout achat de bien immobilier à l'étranger.