Premium New development

Maison de 5 chambres à vendre à Saint John

Saint John, Grenade

€381 480  [$449 999]

Maison de 5 chambres à vendre à Saint John

Saint John, Grenade

€381 480  [$449 999]

Détails du bien immobilier


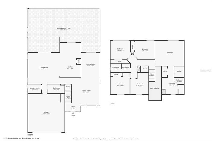
  • Chambres: 5
  • Salles de bain: 3
  • Surface du terrain: 886 m2
  • Surface habitable: 292 m2

Description complète


Located within the serene community of Willow Bend at Crescent Lakes, 5516 Willow Bend Trail offers a perfect blend of comfort and entertainment. This fully furnished 5-bedroom, 3-bathroom home features a breathtaking water view that sets a tranquil tone from the moment you arrive. The outdoor living space is a standout, boasting a screened-in private pool designed for relaxation, while the interior features a garage-turned-game room for non-stop fun. Whether you are searching for a move-in-ready primary residence, a seasonal getaway, or a high-yield investment property, this home is uniquely equipped to meet your needs.

The Crescent Lakes community provides an array of amenities that enhance the Florida lifestyle, including sports courts, soccer fields, and multiple playgrounds. Beyond the neighborhood, you are perfectly positioned just a short drive from Central Florida’s world-class theme parks, championship golf courses, and an abundance of dining and shopping destinations. Offering the best of both worlds—a quiet retreat with proximity to the action—this property is a rare find in a prime location.
Plus

La carte peut ne pas indiquer l'emplacement exact

Cette annonce immobilière (réf: S5144564) est fournie par Alistair Brown International Real Estate et ne constitue pas nécessairement une description précise d’un bien particulier. Bien que aplaceinthesun.com (APITS Ltd.) demande à tous les annonceurs de fournir des informations correctes, il ne vérifie pas les informations fournies et ne peut être tenu responsable pour quelque erreur que ce soit. Aplaceinthesun.com recommande de solliciter un avis juridique indépendant avant tout achat de bien immobilier à l'étranger.