Premium New development

Maison de 5 chambres à vendre à Saint John

Saint John, Grenade

€1 271 527  [$1 495 000]

Maison de 5 chambres à vendre à Saint John

Saint John, Grenade

€1 271 527  [$1 495 000]

Détails du bien immobilier


  • Chambres: 5
  • Salles de bain: 0
  • Surface du terrain: 882 m2
  • Surface habitable: 505 m2

Description complète


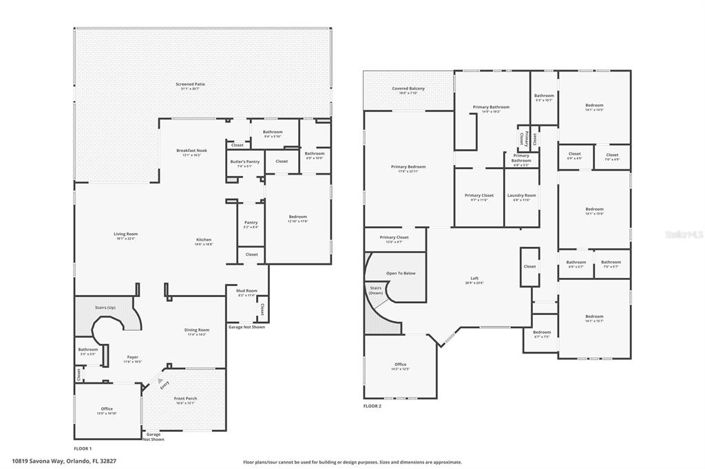
One or more photo(s) has been virtually staged. Set within the highly desirable Lake Nona community, this beautifully appointed Sunchase floor plan offers a refined yet comfortable living experience designed for today’s lifestyle. From the moment you arrive, manicured landscaping and a private, gated courtyard create a sense of privacy and understated elegance.

Inside, the home opens to a welcoming foyer that leads into a thoughtfully arranged split floor plan highlighted by luxury vinyl plank flooring and custom architectural accents. Designed with flexibility in mind, the layout includes 2 dedicated offices/studies, one located on the first floor and a second upstairs,making this home especially well suited for remote work, multigenerational households, or separate work and study needs. The front-facing first-floor office is complemented by a formal living room, offering quiet, functional spaces ideal for productivity or entertaining. At the center of the home, the chef’s kitchen blends style and function with an expanded cabinet layout, gas range, double ovens, and a distinctive island perfect for casual meals or gathering. A discreet butler’s pantry adds valuable prep space and storage, keeping the main kitchen open and uncluttered. The adjacent family room and formal dining area open seamlessly to the screened paver patio, creating a natural flow for everyday living and entertaining alike.

A first-floor bedroom with its own en-suite bath offers an ideal guest suite or secondary primary, providing comfort and privacy for visitors or multigenerational living. A spacious mudroom connects the home to the garage, adding everyday convenience without sacrificing style.

Upstairs, a generous loft serves as a versatile retreat, perfect for a media room, play space, or second family room, along with an additional office, allowing multiple household members to work comfortably from home. The primary suite is a true escape, featuring a private screened balcony and a spa-inspired en-suite bath with elegant finishes. Three additional bedrooms complete the upper level, including two with walk-in closets that share a full bath, and a fifth bedroom with its own en-suite and walk-in closet—ideal for guests or a private suite.

The oversized three-car garage features epoxy flooring and tandem space, offering flexibility for extra storage or an additional vehicle.

Residents of VillageWalk at Lake Nona enjoy a resort-style, maintenance-inclusive lifestyle with scenic bridges, walking trails, heated pools, sports courts, a 24-hour fitness center, and a vibrant town center complete with a deli and gas station. Located near Medical City, AdventHealth Lake Nona, Orlando International Airport, and top-rated schools, this home offers both convenience and community. HOA covers lawn care, cable, internet, and monitored security for easy, low-maintenance living.
Plus

La carte peut ne pas indiquer l'emplacement exact

Cette annonce immobilière (réf: O6370862) est fournie par Alistair Brown International Real Estate et ne constitue pas nécessairement une description précise d’un bien particulier. Bien que aplaceinthesun.com (APITS Ltd.) demande à tous les annonceurs de fournir des informations correctes, il ne vérifie pas les informations fournies et ne peut être tenu responsable pour quelque erreur que ce soit. Aplaceinthesun.com recommande de solliciter un avis juridique indépendant avant tout achat de bien immobilier à l'étranger.